Egindako salmentak
Ref.: IE-28-001-191-000
LOCAL EN CALLE JUAN ESPAÑOL Nº 38, 1-4
(MADRID)
- Descripción y Situación:
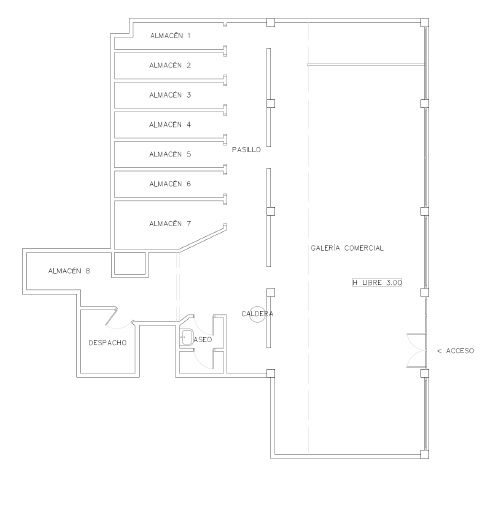
- El local se encuentra en el edificio domiciliado en la calle Juan Español, número 38 de Madrid, es decir, en el barrio de Moscardó – 125 del distrito de Usera – 12 de la capital.Concretamente en la zona oeste del barrio dentro de un área muy cercana a la carretera A-42 Madrid – Toledo.Se trataría de uno de los locales de los pertenecientes a ese edificio con salida a la calle Manuel Noya.El inmueble se encuentra, en términos generales, en buen estado de uso aparente, no existiendo patologías estructurales e instalaciones funcionando correctamente.Presenta diferentes deficiencias de baja gravedad, relativos sobre todo a los paramentos interiores (suelos, falsos techos, paredes, etc.).Este se distribuye en una estancia principal con clara vocación comercial principal, 8 almacenes, 1 baño y un despacho. Cuenta con una altura libre de 3 metros en su estancia principal.
- Calificación:
- Comercial
- Mota:
- Local
- Superficie (m²):
- 192,24







