Egindako salmentak
Ref.: IE-28-001-180-000
LOCAL EN CALLE FRANCISCO LOZANO Nº 20, BAJO A
(MADRID)
- Descripción y Situación:
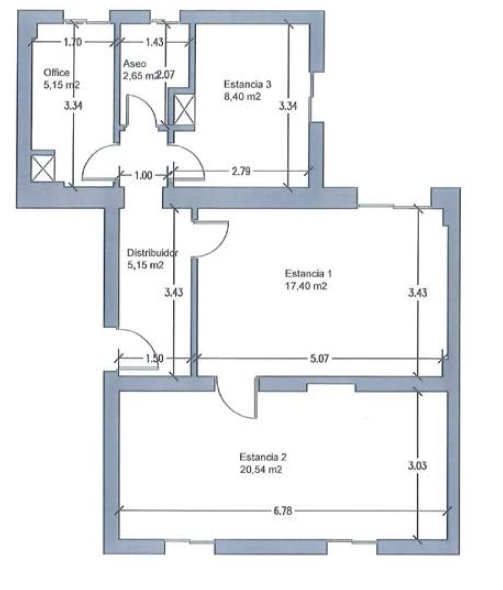
La propiedad se encuentra en el término municipal de Madrid, en el edificio de ocho casas señaladas con los números pares 10 a 22 de la calle Francisco Lozano y 106 de la calle Ferraz, perteneciente al portal nº 20. La parcela tiene formas poligonales simples, y la unidad patrimonial que alberga contiene varios edificios de viviendas.
El local se encuentra en la planta baja del edificio, con acceso desde el portal, no teniendo acceso directo desde la calle. Es un espacio distribuido en 3 estancias, office y aseo.Los interruptores y mecanismos de iluminación están muy deteriorados y/o caídos. Las luminarias son fluorescentes. El cuadro general de mando y protección es antiguo, se desconoce su funcionamiento. En términos generales, la instalación eléctrica no está en condiciones óptimas para su funcionamiento seguro.La superficie útil del inmueble, según reciente medición, es de 60,29 m². La superficie construida es de 77,44 m².- Calificación:
- Comercial
- Mota:
- Local
- Superficie (m²):
- 88,83








