Egindako salmentak
Ref.: IE-15-350-018-000
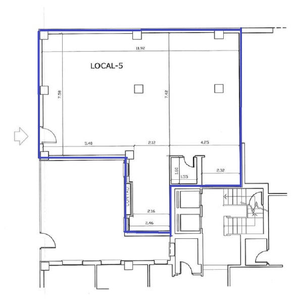
LOCAL EN AVENIDA DEL MAR Nº 19, BAJO 5
FERROL (A CORUÑA)
- Descripción y Situación:
El local se encuentra en el término municipal de Ferrol, dentro del conjunto inmobiliario que forman los portales nº 15, 17 y 19 de la Avenida del Mar, en la planta baja del portal nº 19, con fachadas laterales y posteriores y acceso independiente desde un lateral del edificio.
El local tiene forma regular, con una amplia zona rectangular.Sus fachadas son de fábrica de ladrillo acabadas con mortero acrílico. La fachada lateral cuenta con una puerta ciega de acero, y sólo cuenta con 2 ventanas pequeñas en una fachada a patio exterior. Las paredes perimetrales son medianeras con otros locales y con zonas comunes del edificio.Su interior es diáfano. Se encuentra en bruto. Su altura libre es de 2,91 m.Certificado de Eficiencia Energética: Excluido
- Calificación:
- Comercial
- Mota:
- Local
- Superficie (m²):
- 127,61







