Egindako salmentak
Ref.: IE-03-001-003-000
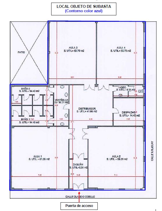
LOCAL EN CALLE CLAUDIO COELLO 3, BAJO-5
(ALICANTE)
- Descripción y Situación:
- La propiedad se encuentra en el término municipal de Alicante, dentro del conjunto inmobiliario sito en la calle Jacinto Benavente nº 4. Este conjunto está formado por un bloque de viviendas con locales en planta baja, con acceso principal por el nº 4 de la calle Jacinto Benavente y con acceso a tres locales por la calle Claudio Coello.Se trata de un local con forma de polígono irregular en “L”; en esquina, que presenta fachada principal a la calle Claudio Coello, por donde tiene su acceso independiente, con vuelta a la calle Uruguay.Su último uso ha sido dependencias municipales con tres aulas-talleres y un gimnasio. El acceso se realiza a través de una puerta metálica de dos hojas desde la calle Claudio Coello, a través de un zaguán, el cual da paso a un distribuidor que sirve de acceso al resto de dependencias. Consta, además de este distribuidor, de cinco estancias más y un núcleo de aseos y vestuarios y un pequeño aseo de personal.Todas las dependencias tienen huecos de ventanas, protegidas con reja metálica, a ambas calles, excepto una de ellas y un aseo que se iluminan a través del patio interior.Exteriormente, la fachada está revestida con un acabado de tirolesa con acabado de pintura. La calle Uruguay tiene pendiente hacia la calle Claudio Coello, lo que produce que la fachada que recae hacia esta calle Uruguay se encuentre, en uno de sus extremos, un metro por debajo de la rasante de la calle.Interiormente, el solado es de terrazo, salvo en los aseos y vestuarios donde es de gres y en el gimnasio existe una lámina de pvc adherida al terrazo.Tiene una altura libre de 3,50 m.
Etiqueta de Eficiencia Energética: Excluido
- Calificación:
- Comercial
- Mota:
- Local
- Superficie (m²):
- 400,97




