Egindako salmentak
Ref.: IE-28-001-182-000
LOCAL EN C/ VELACHO BAJO 10, BAJO IZQDA.
MADRID (MADRID)
- Descripción y Situación:
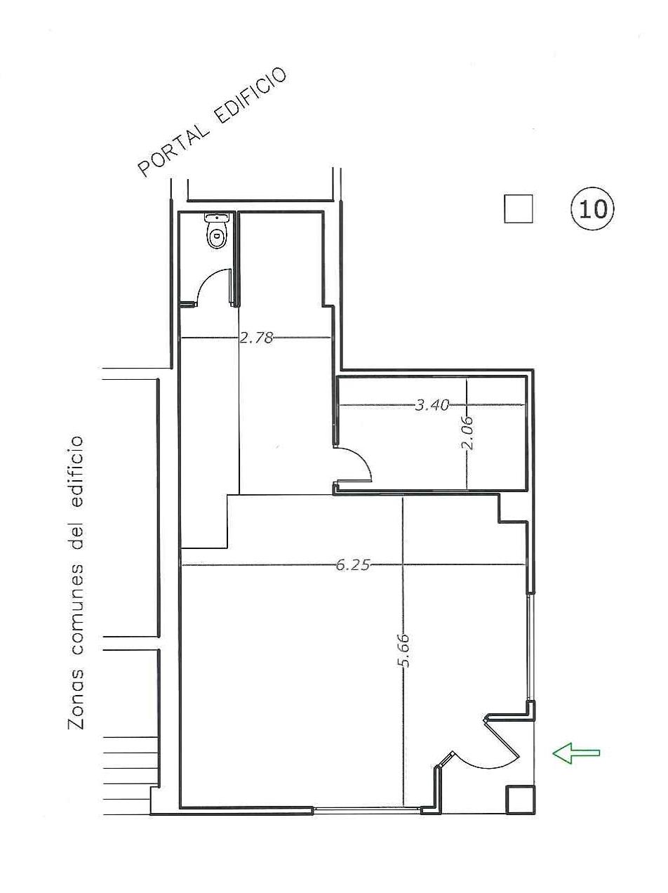
La propiedad objeto de subasta se encuentra en el término municipal de Madrid, dentro del conjunto inmobiliario formado por los portales nº 6, 8 y 10 de la calle Velacho Bajo. En la planta baja de la calle Velacho Bajo nº 10, a la izquierda del portal de entrada al edificio.
Se trata de un local comercial en planta baja con acceso independiente desde el interior de la urbanización del conjunto inmobiliario del que forma parte.
No tiene, por tanto, acceso directo desde vial público.
Tiene dos fachadas que dan al interior de la urbanización, con circulación exclusivamente peatonal. Orientadas a las calles Velacho Bajo y Trinquete.
Las fachadas están enfoscadas y pintadas. El acceso al local se hace mediante puerta en carpintería de aluminio, con cierre enrollable ciego. Las ventanas son de aluminio, con reja metálica de seguridad.
El local se distribuye en varias dependencias y servicios.
Tiene solado de gres, con distintos niveles. El aseo está alicatado y con solado en gres.
Cuenta con falso techo de escayola a 3,00 m. La altura libre a forjado es 3,26 m.
Superficies
Registral: La superficie total construida es de 77,45 m², de los cuales 61,31 m² corresponden a la superficie del local y los restantes 16,14 m² corresponden a la parte proporcional de elementos comunes.
Catastral: Superficie construida 64 m².
- Calificación:
- Comercial
- Mota:
- Local
- Inscripción:
De acuerdo a la certificación catastral de 14 de mayo de 2021, el inmueble que se subasta consta de las siguientes características:
* Parcela de naturaleza urbana, uso comercial, con referencia catastral 4407004VK4840E0042YX, con una superficie construida de 64 m2.
Titularidad: Instituto de Vivienda, Infraestructura y Equipamiento de la Defensa, 100%.
- Superficie (m²):
- 77,45
Datos de la Venta Directa
Harremanetan jartzeko
- Harremanetan jartzeko:
- Instituto de Vivienda, Infraestructura y Equipamiento de la Defensa
Departamento Comercial
Tel.: 916020844 / 916020919 / 916020601
invied_comercial@oc.mde.es








