Egindako salmentak
Ref.: IE-28-001-171
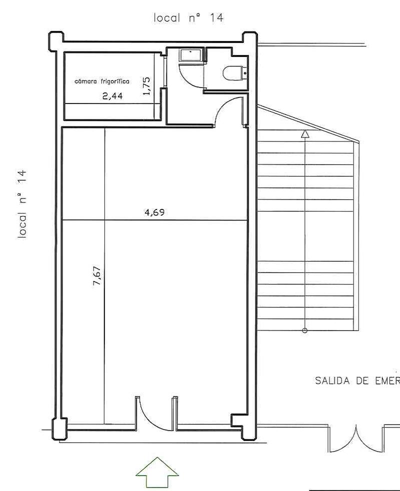
LOCAL EN PASEO DE LOS LANCEROS Nº 2, BAJO 13
MADRID (MADRID)
- Descripción y Situación:
La propiedad se encuentra en el término municipal de Madrid, en laColonia Dehesa del Príncipe, en el edificio comercial señalado con el nº 2 del Paseo de los Lanceros, en su planta baja. Tiene acceso desde el exterior, por la fachada posterior del edificio, que es una calle peatonal orientada a la carretera de Extremadura.Se trata de un local comercial de forma rectangular, distribuido en un espacio principal, otro espacio para cámara frigorífica y un aseo.
- Calificación:
- Comercial
- Mota:
- Local
- Inscripción:
Inscrita en pleno dominio a favor del Estado, Instituto de Vivienda, Infraestructura y Equipamiento de la Defensa, como finca número 75.358, al tomo 1.662, Libro 1.662, Folio 101, Inscripción 2ª del registro de la propiedad número quince de Madrid.
CRU: 28039000821601.
- Superficie (m²):
- 78,05
Datos de la Venta Directa
Harremanetan jartzeko
- Harremanetan jartzeko:
- Instituto de Vivienda, Infraestructura y Equipamiento de la Defensa
Departamento Comercial
Tel.: 916020844 / 916020919 / 916020601
invied_comercial@oc.mde.es








