Tokikoa
Ref.: IE-47-001-026-000
LOCAL EN CALLE INGENIEROS Nº 1, BAJO
(VALLADOLID)
- Descripción y Situación:
La propiedad se encuentra en el término municipal de Valladolid, dentro del conjunto inmobiliario que forman los portales números 1, 3, 5 y 1(B) de la calle Ingenieros, número 9 de la calle Ingenieros con vuelta a la calle Aurora (actual número 1(A) de la calle Ingenieros), y números 7 y 9 de la calle Aurora.
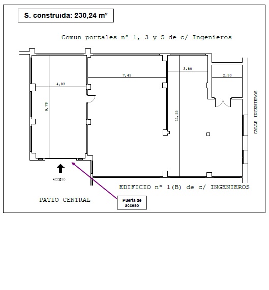
El local se ubica en la planta semisótano del portal número 1 de la calle Ingenieros.El acceso tiene lugar desde el patio interior del conjunto inmobiliario y no cuenta con acceso directo desde la calle.Cuenta con fachada a la calle Ingenieros (de escasa altura dada su condición de semisótano) y a patio interior de manzana. En el resto de su perímetro es colindante con locales anexos pertenecientes a los portales números 1, 3 y 1(B) de calle Ingenieros.Se desarrolla en una planta, a la misma cota que presenta el patio exterior.Se encuentra actualmente sin uso, si bien el último al que ha sido destinado es el de taller de trabajos metálicos.Interiormente se estructura en tres espacios principales de carácter abierto comunicados entre sí, en uno de los cuales se independiza únicamente una estancia de menor tamaño con puerta abatible de dos hojas que aloja un compresor.Se ilumina a través de huecos configurados con prefabricados de hormigón en las dos fachadas orientadas al patio y huecos situados en la parte superior del cerramiento hacia la calle Ingenieros.La puerta de acceso es una puerta seccional de garaje de panel sándwich de aluminio.La fachada hacia el patio interior está enfoscada y pintada en color, y presenta un zócalo de piedra caliza en su parte inferior.Presenta en parte solado de baldosas de terrazo, elevado sobre la solera original de hormigón del local.Las paredes se encuentran enfoscadas y pintadas, y no cuenta con falso techo en ninguna de sus estancias.En cuanto a las instalaciones, cuenta con instalación de electricidad en aparente buen estado, de aire comprimido, y de abastecimiento de agua y saneamiento de un urinario situado en una de las paredes, sin independizar.Etiqueta de Eficiencia Energética: Excluido- Calificación:
- Comercial
- Mota:
- Local
- Inscripción:
Inscrita en pleno dominio a favor del Estado, Instituto de Vivienda, Infraestructura y Equipamiento de la Defensa, como finca número 18387, Tomo 3008, Libro 279, Folio 180, Inscripción 1ª. CRU: 47019001521903.
- Superficie (m²):
- 230,24
- Importe:
- 79.684,39 €
Datos de la Venta Directa
- Fecha límite de Venta Directa:
- Hasta las trece horas del 17 de marzo de 2027
Harremanetan jartzeko
- Harremanetan jartzeko:
- Instituto de Vivienda, Infraestructura y Equipamiento de la Defensa
Departamento Comercial
Tel.: 916020844 / 916020601
invied_comercial@oc.mde.es
Estekak
Dokumentu interesgarriak
- BOE
-
- Pdf 235.78 KB
- Pliego de Condiciones Administrativas
-
- Pdf 1.58 MB
- Pliego de Condiciones Técnicas
-
- Pdf 5.63 MB







