Tokikoa
Ref.: IE-47-001-018-000
LOCAL EN PASEO ZORRILLA, 67, SÓTANO
(VALLADOLID)
- Descripción y Situación:
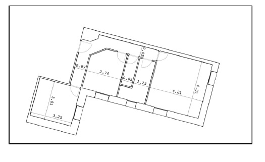
- La propiedad objeto de subasta se encuentra en el término municipal de Valladolid, dentro del conjunto inmobiliario que forman los portales nº 61, 63, 65, 67 y 69 del Paseo de Zorrilla.El local se ubica en la planta sótano del portal nº 67 del Paseo de Zorrilla, y se accede al mismo desde el pasillo distribuidor del sótano.Cuenta con acceso independiente desde el portal del edificio, descendiendo un único tramo de escaleras que salva la diferencia de cota existente entre el mismo y la planta sótano, en la que se ubican además trasteros y cuartos de instalaciones del edificio de viviendas.Está formado por; distribuidor, cocina, cuarto de baño, trastero, y dos estancias que en su día habrán sido utilizadas como dormitorio.Todas las estancias son exteriores a excepción de la despensa y el distribuidor. Las carpinterías exteriores e interiores son de madera, y los suelos de baldosa cerámica. Las instalaciones se encuentran fuera de uso.
Certificado de Eficiencia Energética: En tramitación
- Calificación:
- Comercial
- Mota:
- Local
- Inscripción:
- Registro de la Propiedad de Valladolid número 7. Finca registral nº 11040. Tomo: 2541, Libro 145, Folio 41. C.R.U.: 47013000759732.
- Superficie (m²):
- 78,78
- Importe:
- 40.373,73 €
Datos de la Venta Directa
- Fecha límite de Venta Directa:
- Hasta las trece horas del 4 de junio de 2026
Harremanetan jartzeko
- Harremanetan jartzeko:
- Instituto de Vivienda, Infraestructura y Equipamiento de la Defensa
Departamento Comercial
Tel.: 916020844 / 916020601
invied_comercial@oc.mde.es
Estekak
Dokumentu interesgarriak
- BOE
-
- Pdf 259.12 KB
- Pliego de Condiciones Administrativas
-
- Pdf 1.43 MB
- Pliego de Condiciones Técnicas
-
- Pdf 3.96 MB
- Información urbanística
-
- Pdf 296.38 KB








