Tokikoa
Ref.: IE-28-001-165-000
LOCAL EN PASEO LANCEROS 2, 1ª, 18-B
MADRID (MADRID)
- Descripción y Situación:
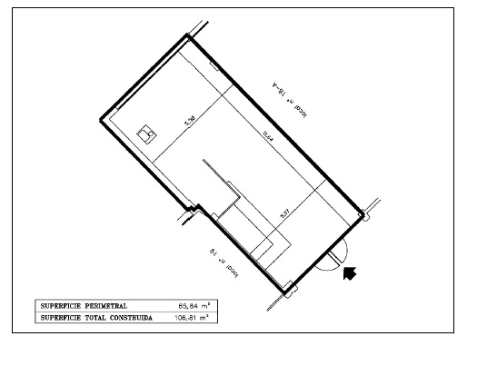
- El local se encuentra en el término municipal de Madrid, en la Colonia Dehesa del Príncipe, en el edificio comercial señalado con el nº 2 del Paseo de los Lanceros, en su planta primera, local 18-B.El local tiene acceso por el interior del edificio, desde el distribuidor de planta de la galería comercial. No tiene, por tanto, acceso directo desde la calle.Es un local prácticamente diáfano, con un tabique de separación de una antigua cocina y un mostrador. En forma rectangular.La superficie total construida del local es de 106,81 m², de los cuales 65,84 m² corresponden a la superficie que encierra el perímetro del local y los restantes 40,97 m² corresponden a la parte proporcional de elementos comunes.
Certificado de Eficiencia Energética: En tramitación
- Calificación:
- Comercial
- Mota:
- Local
- Inscripción:
- Registro de la Propiedad de Madrid número 15. Finca registral n.º 77414. Tomo: 1729, Libro 1729, Folio 137. C.R.U.: 28039000844877.
- Superficie (m²):
- 106,81
- Importe:
- 85.131,81 €
Datos de la Venta Directa
- Fecha límite de Venta Directa:
- Hasta las trece horas del 4 de junio de 2026
Harremanetan jartzeko
- Harremanetan jartzeko:
- Instituto de Vivienda, Infraestructura y Equipamiento de la Defensa
Departamento Comercial
Tel.: 916020844 / 916020601
invied_comercial@oc.mde.es
Estekak
Dokumentu interesgarriak
- BOE
-
- Pdf 259.12 KB
- Pliego de Condiciones Administrativas
-
- Pdf 1.43 MB
- Pliego de Condiciones Técnicas
-
- Pdf 3.15 MB







