Tokikoa
Ref.: IE-15-350-030-000
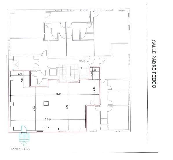
LOCAL EN CALLE PADRE FEIJOO Nº 19, BAJO 19
FERROL (A CORUÑA)
- Descripción y Situación:
- El local se encuentra en el término municipal de Ferrol, dentro del conjunto inmobiliario que forman los portales nº 17 Y 19 de la calle Padre Feijoo, en la planta baja del portal nº 19, a la derecha del acceso al portal, con dos fachadas al interior del conjunto y con acceso independiente desde una de ellas. No tiene, por tanto, acceso directo desde vial público.El local tiene forma sensiblemente rectangular, con interior diáfano.Sus dos fachadas son de fábrica de ladrillo acabadas con mortero acrílico. En una de ellas se encuentra la puerta de acceso, a la que se accede subiendo seis escalones. El local no tiene ventanas. El resto de paredes perimetrales son medianeras con una vivienda y con las zonas comunes del edificio.El local tiene forma sensiblemente rectangular, su interior es diáfano y se encuentra en bruto. Su altura libre es de 2,60 m, sin contar con la futura colocación del pavimento.
Certificado de Eficiencia Energética: Excluido
- Calificación:
- Comercial
- Mota:
- Local
- Inscripción:
lnscrita en pleno dominio a favor del Estado, Instituto de Vivienda, lnfraestructura y Equipamiento de la Defensa, como finca número 69632, al tomo 2322, Libro 949, Folio 213, lnscripción 2ª del Registro de la Propiedad de Ferrol.
IDUFIR: 15008000529172.- Superficie (m²):
- 109,40
- Importe:
- 22.777,50 €
Datos de la Venta Directa
- Fecha límite de Venta Directa:
- Hasta las trece horas del 24 de septiembre de 2026
Harremanetan jartzeko
- Harremanetan jartzeko:
- Instituto de Vivienda, Infraestructura y Equipamiento de la Defensa
Departamento Comercial
Tel.: 916020844 / 916020601
invied_comercial@oc.mde.es
Estekak
Dokumentu interesgarriak
- BOE
-
- Pdf 234.62 KB
- Pliego de Condiciones Administrativas
-
- Pdf 1.49 MB
- Pliego de Condiciones Técnicas
-
- Pdf 1.96 MB







