Local
Ref.: IE-47-001-011-000
LOCAL EN CALLE PADRE FRANCISCO SUAREZ, 25, SÓTANO
(VALLADOLID)
- Descripción y Situación:
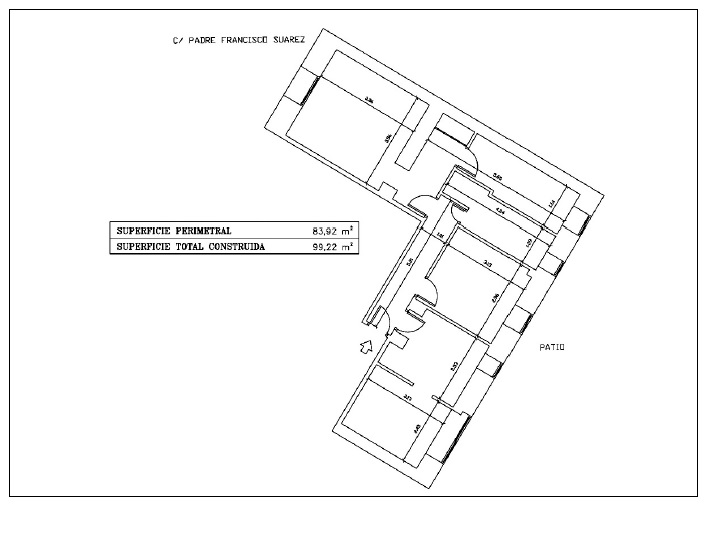
- La propiedad se encuentra en el término municipal de Valladolid, dentro del conjunto inmobiliario que forman los portales nº 23 y 25 de la calle Padre Francisco Suarez, nº 2 de la calle Pedro Ponce de León y nº 64 del Paseo de Zorrilla.El local se ubica en la planta sótano del portal nº 25 de la calle Padre Francisco Suarez, y se accede al mismo desde la zona común de su planta.En origen tenía un uso de vivienda de la portería, pero actualmente su uso es como trastero o almacén.
La distribución interior se corresponde con una vivienda, encontrándose en un mal estado de conservación.
Certificado de Eficiencia Energética: En tramitación
- Calificación:
- Comercial
- Tipo:
- Local
- Inscripción:
- Registro de la Propiedad de Valladolid número 1. Finca registral nº 47845. Tomo: 2486, Libro 573, Folio 143. C.R.U.: 47013000709553
- Superficie (m²):
- 99,22
- Importe:
- 61.023,57 €
Datos de la Venta Directa
- Fecha límite de Venta Directa:
- Hasta las trece horas del 4 de junio de 2026
Contacto
- Contacto:
- Instituto de Vivienda, Infraestructura y Equipamiento de la Defensa
Departamento Comercial
Tel.: 916020844 / 916020601
invied_comercial@oc.mde.es
Ligazóns
Documentos de interese
- BOE
-
- Pdf 259.12 KB
- Pliego de Condiciones Administrativas
-
- Pdf 1.43 MB
- Pliego de Condiciones Técnicas
-
- Pdf 3.98 MB
- Información urbanística
-
- Pdf 296.38 KB







