Local
Ref.: IE-47-001-010-000
LOCAL EN CALLE PADRE FRANCISCO SUAREZ, 23, SÓTANO
(VALLADOLID)
- Descripción y Situación:
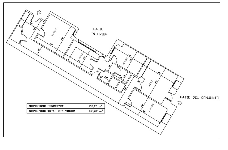
- La propiedad se encuentra en el término municipal de Valladolid, dentro del conjunto inmobiliario que forman los portales nº 23 y 25 de la calle Padre Francisco Suarez, nº 2 de la calle Pedro Ponce de León y nº 64 del Paseo de Zorrilla.El local se ubica en la planta sótano del portal nº 23 de la calle Padre Francisco Suarez, y se accede al mismo desde la zona común de su planta unida a la escalera de edificio, y mediante otra puerta desde el patio interior del edificio.En origen tenía un uso de vivienda de la portería, pero actualmente su uso es como trastero o almacén.
La distribución interior se corresponde con una vivienda, encontrándose en un mal estado de conservación.
Certificado de Eficiencia Energética: En tramitación
- Calificación:
- Comercial
- Tipo:
- Local
- Inscripción:
- Registro de la Propiedad de Valladolid número 1. Finca registral nº 52189. Tomo: 2584, Libro 649, Folio 180. C.R.U.: 47013000797536.
- Superficie (m²):
- 133,62
- Importe:
- 77.158,74 €
Datos de la Venta Directa
- Fecha límite de Venta Directa:
- Hasta las trece horas del 4 de junio de 2026
Contacto
- Contacto:
- Instituto de Vivienda, Infraestructura y Equipamiento de la Defensa
Departamento Comercial
Tel.: 916020844 / 916020601
invied_comercial@oc.mde.es
Ligazóns
Documentos de interese
- BOE
-
- Pdf 259.12 KB
- Pliego de Condiciones Administrativas
-
- Pdf 1.43 MB
- Pliego de Condiciones Técnicas
-
- Pdf 3.76 MB
- Información urbanística
-
- Pdf 296.38 KB







