As vendas realizadas
Ref.: IE-15-350-014-000
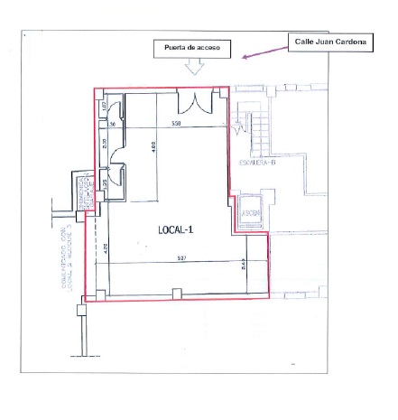
LOCAL EN CALLE LUIS DE REQUESENS Nº 4, BAJO 1
FERROL (A CORUÑA)
- Descripción y Situación:
Se encuentra en el término municipal de Ferrol, dentro del conjunto inmobiliario formado por los portales nº 1, 2, 3, 4 y 5 de la calle Luis de Requesens, en la planta baja del portal nº 4, con fachada y acceso independiente al exterior del conjunto, por la calle Juan Cardona y posterior.
El local tiene planta de polígono irregular. Su fachada es de fábrica de ladrillo revestida con mortero de cemento y acabada con pintura plástica, cuenta con una puerta y pequeñas ventanas altas en todas sus fachadas; el resto de paredes perimetrales son medianeras con las zonas comunes del edificio.
Su interior es diáfano, con un aseo con ducha. El solado es de baldosa cerámica, y los paramentos están pintados. Su altura libre es de 2,66 m.
- Calificación:
- Comercial
- Tipo:
- Local
- Superficie (m²):
- 81.28







