Local
Ref.: IE-15-350-031-000
LOCAL EN CALLE PADRE FEIJOO Nº 21, BAJO 21-23
FERROL (A CORUÑA)
- Descripción y Situación:
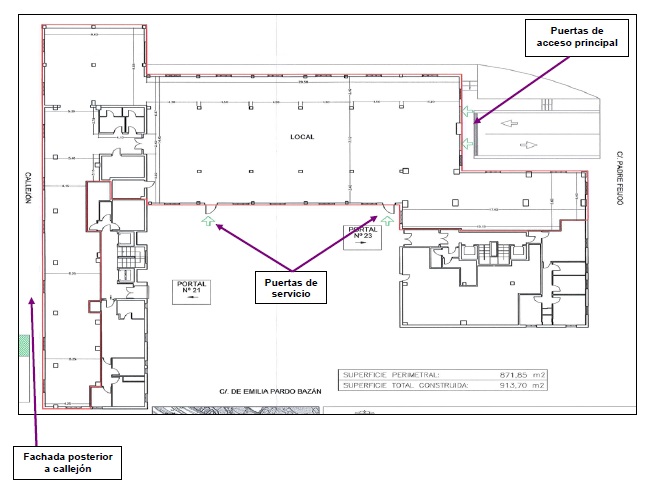
Se encuentra en el término municipal de Ferrol, dentro del conjunto inmobiliario formado por los portales nº 21 y 23 de la calle Padre Feijoo, en la planta baja de dichos portales, con fachadas y accesos independientes del edificio al interior del conjunto y fachada posterior a callejón peatonal.
El local tiene la distribución en planta propia de un enorme supermercado, su último uso.
Sus fachadas son de fábrica de ladrillo revestidas con mortero de cemento y acabadas con mortero acrílico; el resto de paredes perimetrales son medianeras con dos viviendas y con elementos comunes de los edificios nº 21 y nº 23. Su cubierta es de planchas de fibrocemento. El local cuenta con un amplio acceso peatonal desde su fachada principal, y dos accesos de servicio y otro para suministro de mercancías desde los laterales, y ventanas por casi todo su perímetro (27 ventanas).
Consta de una amplia zona diáfana (solo ocupada por los pilares), aseos y vestuarios, almacenes y oficinas. El solado es, en su mayor parte, de terrazo; los paramentos están pintados en blanco y tiene falso techo en todo el local. Su altura libre es de 2,60 m. hasta el falso techo.
Etiqueta de Eficiencia Energética: Excluido
- Calificación:
- Comercial
- Tipo:
- Local
- Inscripción:
Inscrita en pleno dominio a favor del Estado, Instituto de Vivienda, Infraestructura y Equipamiento de la Defensa, como finca número 69486, al tomo 2316, Libro 946, Folio 98, Inscripción 2ª del registro de la propiedad de Ferrol. IDUFIR: 15008000527314.
- Superficie (m²):
- 913,70
- Importe:
- 202.124,22 €
Datos de la Venta Directa
- Fecha límite de Venta Directa:
- Hasta las trece horas del 17 de marzo de 2027
Contacto
- Contacto:
- Instituto de Vivienda, Infraestructura y Equipamiento de la Defensa
Departamento Comercial
Tel.: 916020844 / 916020601
invied_comercial@oc.mde.es
Ligazóns
Documentos de interese
- BOE
-
- Pdf 235.78 KB
- Pliego de Condiciones Administrativas
-
- Pdf 1.58 MB
- Pliego de condiciones técnicas
-
- Pdf 5.57 MB







