Local
Ref.: IE-02-001-006-000
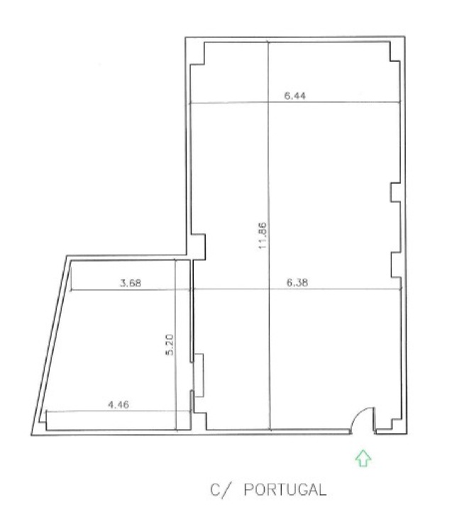
LOCAL EN CALLE PORTUGAL Nº 6, BAJO 2
(ALBACETE)
- Descripción y Situación:
- El local se encuentra en la planta baja del conjunto inmobiliario, de viviendas plurifamiliares, que forma el portal nº 6 de la calle Portugal.Se encuentra en bruto, sin distribución interior, sin instalaciones propias, eléctricas, sanitarias o de climatización. Tiene acceso independiente desde la calle Portugal, con forma de polígono rectangular y diáfano. La fachada presenta revestimiento de enfoscado de mortero pintado en color beige siendo el acceso a través de una puerta metálica sin cierre de seguridad. No tiene escaparates ni zonas acristaladas. No presenta instalaciones de ningún tipo.El suelo es la propia solera de hormigón, sin terminación alguna. Las paredes no tienen revestimiento, dejando ver el ladrillo de las paredes medianeras. Tampoco presenta falso techo, dejando una altura libre total de 3,45 m en la zona central y de 3,05 m en la lateral izquierda.No tiene envolvente térmica o es muy deficiente (es decir, sus paredes, carpinterías, techos o suelos no están correctamente aislados de la intemperie). Está desprovisto total o parcialmente de conducciones e instalaciones eléctricas propias. No tiene instalaciones térmicas propias (no dispone de instalaciones para climatización, calefacción o agua caliente).
Certificado de Eficiencia Energética: Excluido
- Calificación:
- Comercial
- Tipo:
- Local
- Inscripción:
Inscrita en pleno dominio a favor del Instituto de Vivienda, Infraestructura y Equipamiento de la Defensa como finca número 11.534, al tomo 1.531, Libro 191, Folio 191, inscripción 6ª, del Registro de la Propiedad nº 4 de Albacete.
IDUFIR: 02011000341053- Superficie (m²):
- 112,77
- Cantidade de oferta:
- Primera subasta 100.996,53 € Segunda subasta 90.896,88 €
Información de Licitación
- Data final de prazo de presentación de ofertas e documentación:
- Hasta las trece horas del 5 de junio de 2026
- Data e hora da Lei pública:
- A partir de las once horas del 1 de julio de 2026
- Lugar de acto público:
- Instituto de Vivienda, Infraestructura y Equipamiento de la Defensa, c/ Isaac Peral nº 20-32, 28015 Madrid
Texto no traducido
- Texto no traducido:
- Instituto de Vivienda, Infraestructura y Equipamiento de la Defensa
Departamento Comercial
Tel.: 916020844 / 916020601
invied_comercial@oc.mde.es
Ligazóns
Documentos de interese
- BOE
-
- Pdf 231.35 KB
- Pliego de Condiciones Administrativas
-
- Pdf 246.11 KB
- Pliego de Condiciones Técnicas
-
- Pdf 2.89 MB
- Programa sobres cifrados
-
- Zip 63 MB
- Manual programa sobres cifrados
-
- Pdf 342.57 KB
- Comprobación autenticidad programa
-
- Pdf 206.92 KB
- Modelo Declaración jurada
-
- Pdf 415.08 KB
- Documento representación
-
- Pdf 73.34 KB
- Instrucciones constitución garantía
-
- Pdf 910.02 KB
- Registro Electrónico de Apoderamientos
-
- Pdf 347.49 KB







