Vendes realitzades
Ref.: IE-28-001-175-000
LOCAL EN C/VELACHO ALTO Nº 16 BJ 2
MADRID (MADRID)
- Descripción y Situación:
La propiedad objeto de subasta se encuentra en el término municipal de Madrid, dentro del conjunto inmobiliario formado por los portales nº 4, 6, 8, 10, 12 y 16 de la calle Velacho Alto. En la planta baja del nº 16 de la calle Velacho Alto, a la izquierda del portal de entrada.
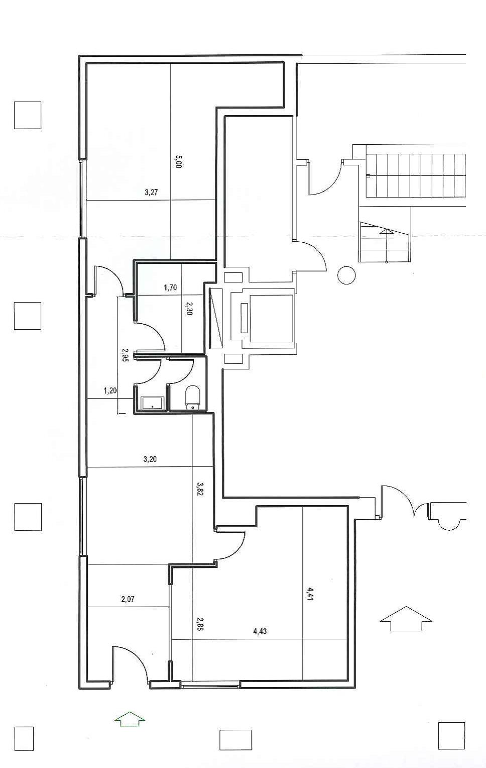
Se trata de un local con forma de polígono irregular de varios lados, rectangular, en planta baja y con acceso independiente desde el interior de la urbanización del conjunto inmobiliario del que forma parte. No tiene, por tanto, acceso directo desde vial público.
Linda por tres lados con la urbanización de la que forma parte, con circulación exclusivamente peatonal, y el lindero restante es con el portal de acceso al edificio al que pertenece.
Las paredes exteriores son de ladrillo: cara vista el frente de acceso y en porche y enfoscadas y pintadas la de fondo y lateral. Tiene tres ventanas de aluminio, con reja dos de ellas. La puerta de acceso es blindada. Se distribuye en varias dependencias, con una pequeña cocina y aseo.
Tiene solado de terrazo, falso techo de escayola dejando una altura libre de 2,70 m. y paredes perimetrales y particiones enyesadas y empapeladas. La cocina y el aseo están alicatados. Tiene un desnivel interior entre el hall y el resto del local de 12 cm.
La superficie construida del local es de 89,49 m², de los cuales 73,71 m² corresponden a la superficie del local y los restantes 15,78 m² corresponden a la parte proporcional de elementos comunes.
- Calificación:
- Comercial
- Tipus:
- Local
- Inscripción:
Inscrita en pleno dominio a favor del Instituto de Vivienda, Infraestructura y Equipamiento de la Defensa, como finca número 38263, al Tomo 2084, Libro 940, Folio 92, Inscripción 2ª del registro de la propiedad número 12 de Madrid.
CRU: 28098000399015
- Superficie (m²):
- 89,49
Datos de la Venta Directa
Contacte
- Contacte:
- Instituto de Vivienda, Infraestructura y Equipamiento de la Defensa
Departamento Comercial
Tel.: 916020844 / 916020919 / 916020601
invied_comercial@oc.mde.es







