Vendes previstes
Ref.: IE-15-350-038-000
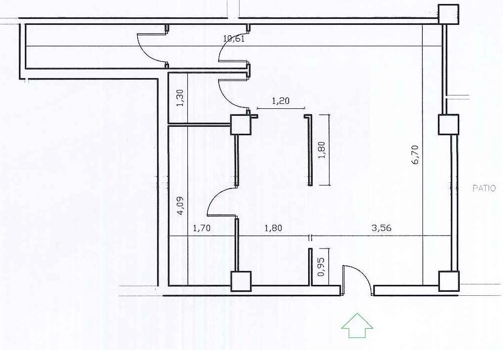
LOCAL EN CALLE EJERCITO ESPAÑOL Nº 5 BAJO 3
FERROL (A CORUÑA)
- Descripción y Situación:
La propiedad se encuentra en el término municipal de Ferrol, dentro del conjunto inmobiliario formado por el portal nº 5 de la calle Ejército Español, en la planta baja, a la derecha del portal, con fachada principal y acceso independiente desde la calle Ejército Español.
Se trata de un local con forma de polígono irregular, distribuido en planta baja con varias estancias.
Tiene el cerramiento de acceso en aluminio color granito y acristalado, formado por una puerta de una hoja abatible y un escaparate en el lado derecho de la puerta. Cuenta con un cierre enrollable ciego de seguridad. El contorno del cerramiento de acceso está enfoscado.
El solado es de baldosa de gres, las paredes están revestidas de yeso y el techo es el propio forjado revestido de yeso.
- Calificación:
- Comercial
- Tipus:
- Local
- Superficie (m²):
- 62.40
Contacte
- Contacte:
- Instituto de Vivienda, Infraestructura y Equipamiento de la Defensa
Departamento Comercial
Tel.: 916020844 / 916020601
invied_comercial@oc.mde.es







