Ventas realizadas
Ref.: IE-11-300-021-000
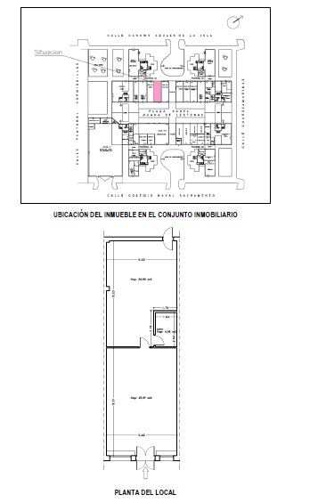
LOCAL EN PLAZA SANTA JUANA DE LESTONAC Nº 3, BAJO 3
SAN FERNANDO (CADIZ)
- Descripción y Situación:
- La propiedad se encuentra en el término municipal de San Fernando (Cádiz), en el conjunto inmobiliario formado por los edificios nº 2 y 4 de la calle Cascos Azules de la Isla, nº 1, 2, 3 y 4 de la Plaza Santa Juana de Lestonac y nº 1 y 3 de la calle Colegio Naval Sacramento.Se trata de un local situado junto al portal número 3 de la Plaza Santa Juana de Lestonac, con acceso por dicha plaza y por el pasaje trasero que desemboca en la calle Cascos Azules de la Isla. Su forma es rectangular y forma medianera con los locales nº 2-A-2 y nº 2-A-3 de su mismo portal.Las fachadas están enfoscadas y pintadas y tienen una longitud aproximada de 5,80 metros. La fachada principal (Plaza Santa Juana de Lestonac) presenta dos (2) ventanas a un metro de altura sobre el suelo y una (1) puerta de acceso de doble batiente, resueltas todas ellas con carpintería de aluminio anodizado color bronce y protegidas con rejas metálicas de seguridad; la fachada trasera (Travesía 2-A) presenta una puerta de acceso secundario.El local no dispone de sótano, estando asentado directamente sobre el terreno.Interiormente el local se distribuye en dos (2) estancias y un (1) aseo, cuenta con alumbrado y con un (1) aparato de aire acondicionado sobre la puerta de acceso principal.La estancia principal presenta dos de sus paredes pintadas y las otras dos alicatadas hasta el techo; dispone de falso techo. El solado se resuelve con baldosa de terrazo.La estancia secundaria se separa de la principal mediante un tabique con una puerta de acceso de madera. Sus paredes están pintadas, así como su techo y el solado es de cemento bruñido.El aseo dispone de lavabo e inodoro. Sus paredes están alicatadas y el suelo es de gres.
- Calificación:
- Comercial
- Tipo:
- Local
- Superficie (m²):
- 112,02






