Ventas realizadas
Ref.: IE-15-001-012-000
LOCAL EN AVENIDA DEL EJERCITO 12 PL 1
Av del Ejército 12 Pl 1(A CORUÑA)
- Descripción y Situación:
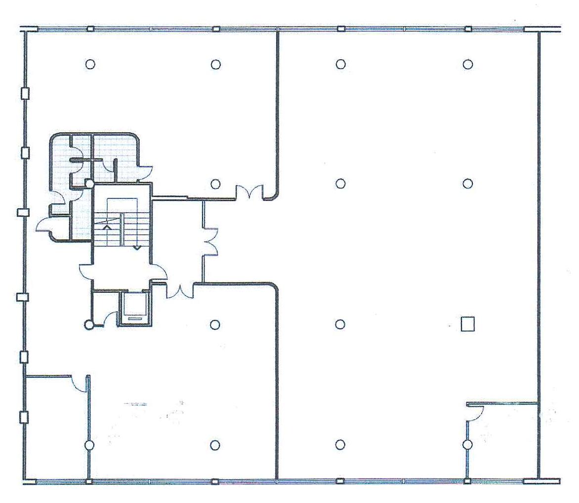
La propiedad objeto de subasta se encuentra en la Avenida del Ejército nº 12, 1º, en La Coruña, en el límite nororiental del barrio de Cuatro Caminos, en una zona residencial, frente a la valla del área industrial del muelle de San Diego.
Se trata de un local comercial con forma de polígono regular, casi cuadrado, distribuido interiormente en varias dependencias. Cuenta con dos puertas de acceso desde el rellano de la escalera de la planta primera.
- Calificación:
- Comercial
- Tipo:
- Local
- Inscripción:
Inscrita en pleno dominio a favor del Estado, Ministerio de hacienda y Administraciones Públicas, como finca número 40652, al tomo 1608, Libro 1608, Folio 31, Inscripción 5ª del registro de la propiedad nº 1 de La Coruña. CRU: 15018000231623.
- Superficie (m²):
- 640
Datos de la Venta Directa
Contacto
- Contacto:
- Instituto de Vivienda, Infraestructura y Equipamiento de la Defensa
Departamento Comercial
Tel.: 916020844 / 916020919 / 916020601
invied_comercial@oc.mde.es








