Ventas previstas
Ref.: IE-02-001-007-000
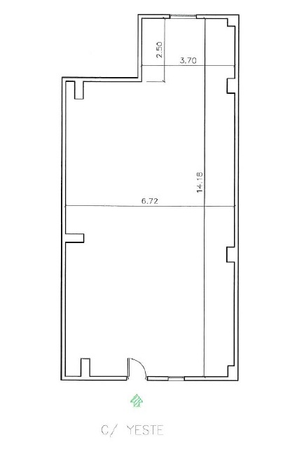
LOCAL EN CALLE YESTE Nº 12, BAJO DERECHA
(ALBACETE)
- Descripción y Situación:
- El local se encuentra en la planta baja de un edificio, residencial, de viviendas plurifamiliares, señalado con el número 12 de la calle Yeste.Se encuentra en bruto, sin distribución interior, sin instalaciones propias, eléctricas, sanitarias o de climatización.Tiene acceso independiente desde la calle Yeste, con forma de polígono irregular y diáfano.El suelo es la propia solera de hormigón, sin terminación alguna. Las paredes no tienen revestimiento, dejando ver el ladrillo de las paredes medianeras. Tampoco presenta falso techo, dejando una altura libre total de 3,70m.No tiene envolvente térmica o es esta muy deficiente (es decir, sus paredes, carpinterías, techos o suelos no están correctamente aislados de la intemperie).Están desprovistos total o parcialmente de conducciones e instalaciones eléctricas propias.No tienen instalaciones térmicas propias (no dispone de instalaciones para climatización, calefacción o agua Caliente).
- Calificación:
- Comercial
- Tipo:
- Local
- Superficie (m²):
- 93,68
Contacto
- Contacto:
- Instituto de Vivienda, Infraestructura y Equipamiento de la Defensa
Departamento Comercial
Tel.: 916020844 / 916020601
invied_comercial@oc.mde.es







