Locales
Ref.: IE-15-350-032-000
LOCAL EN CALLE SOL Nº 201, BAJO 2
FERROL (A CORUÑA)
- Descripción y Situación:
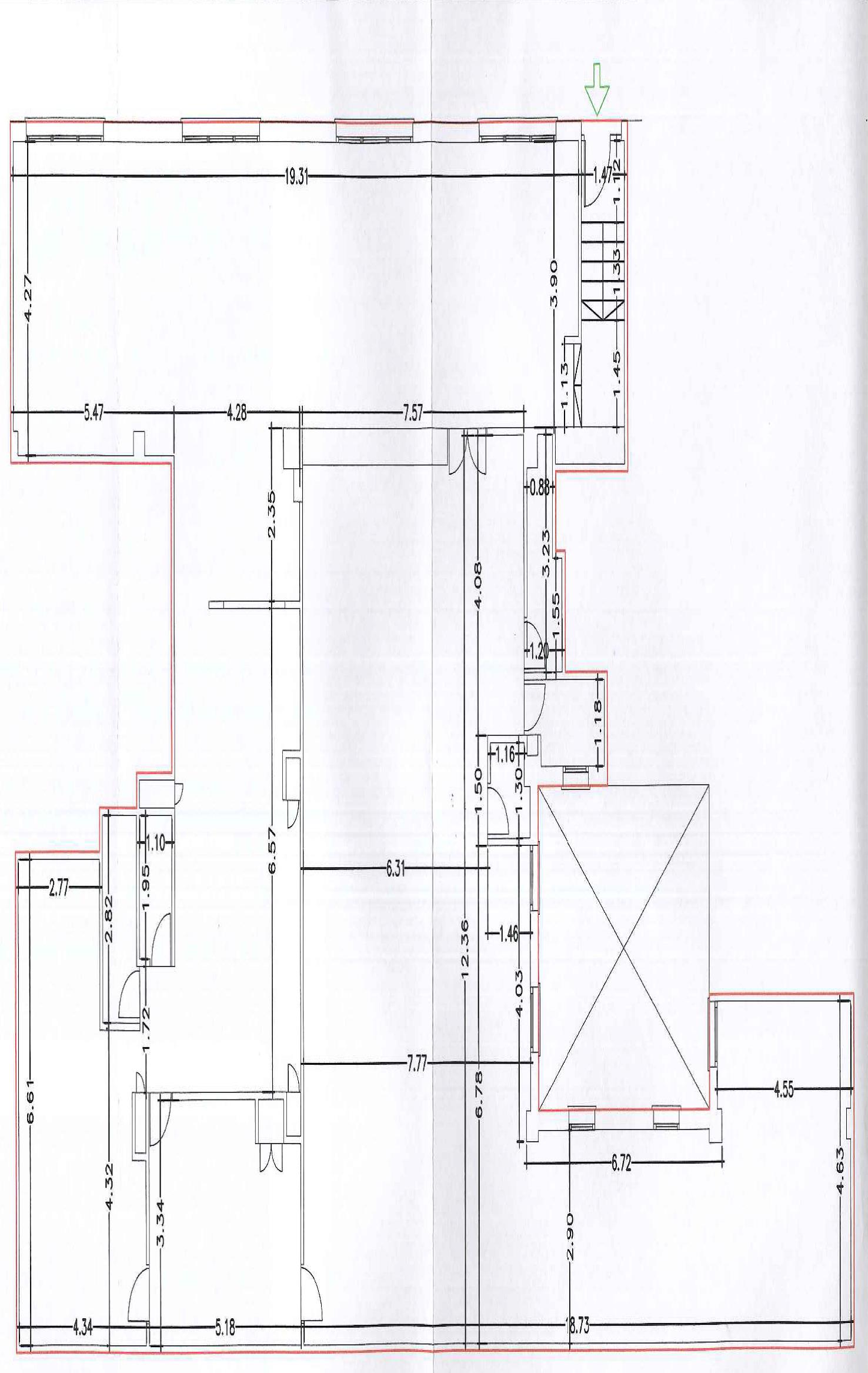
La propiedad se encuentra en el término municipal de Ferrol, en el conjunto inmobiliario formado por los portales de la calle María nº 210, nº 22-26 de la calle San Diego y nº 201 de la calle Sol. A la derecha del portal de la calle Sol nº 201, con fachada principal y acceso desde esta calle, y demás fachadas a patio interior.
Se trata de un local con forma de polígono irregular, cuya fachada principal tiene una longitud de 20,78 metros, y el lado opuesto a ésta, el más largo, mide 28,25 m.
Sus fachadas, que son de fábrica de ladrillo revestida con mortero de cemento y acabada con pintura, cuentan con amplios ventanales. El resto de paredes perimetrales son medianeras con las zonas comunes del edificio.
Su interior lo componen una amplia estancia, a la que se accede subiendo 8 escalones, zonas de atención al público, varias estancias más, cuatro aseos y un almacen; desde el local hay acceso a varios patinillos de instalaciones.
La altura libre desde el suelo hasta el falso techo es de 2,17 m. y 2,45 m según las zonas; hasta la cara inferior del forjado de techo hay 2,60 m.
Etiqueta de Eficiencia Energética: En tramitación
- Calificación:
- Comercial
- Tipo:
- Local
- Inscripción:
Inscrita en pleno dominio a favor del Estado, Instituto de Vivienda, Infraestructura y Equipamiento de la Defensa, cmo finca número 62197, al tomo 2116, Libro 854, Folio 64, inscripción 2ª del registro de la propiedad de Ferro. IDUFIR: 15008000488042.
- Superficie (m²):
- 341,21
- Importe de Licitación:
- Tercera subasta 81.901,03 € Cuarta subasta 73.710,93 €
Información de Licitación
- Fecha límite de presentación de ofertas y documentación:
- Hasta las trece horas del 24 de febrero de 2026
- Fecha y hora del Acto Público:
- A partir de las once horas del 17 de marzo de 2026
- Lugar del Acto Público:
- Instituto de Vivienda, Infraestructura y Equipamiento de la Defensa, c/ Isaac Peral nº 20-32, 28015 Madrid
Contacto
- Contacto:
- Instituto de Vivienda, Infraestructura y Equipamiento de la Defensa
Departamento Comercial
Tel.: 916020844 / 916020601
invied_comercial@oc.mde.es
Enlaces
Documentos de interés
- Pliego de Condiciones Técnicas
-
- Pdf 5,31 MB








