Texto no traducido
Ref.: IE-47-001-021-000
LOCAL EN CALLE AURORA Nº 7, BAJO DERECHA
(VALLADOLID)
- Descripción y Situación:
La propiedad se encuentra en el término de Valladolid, dentro del conjunto inmobiliario que forman los portales nº 7 y 9 de la calle Aurora y nº 1, 3, 5 y 9 de la calle Ingenieros.
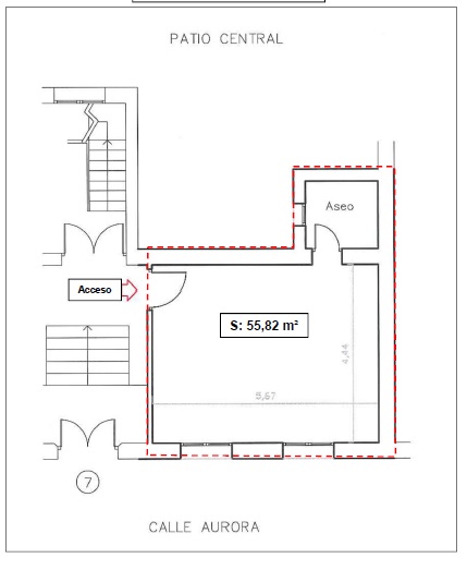
Se ubica en la planta baja del portal nº 7 de la calle Aurora, a mano derecha en el sentido de entrada al edificio, accediéndose al mismo desde el portal. No cuenta, por tanto, con acceso directo desde la calle.Se trata de un local comercial con forma de polígono irregular en “L” de seis lados. Tiene una fachada a la calle Aurora y la opuesta a patio interior de manzana.Se desarrolla en planta baja, si bien a una cota elevada respecto al nivel de la calle. Es necesario salvar 6 peldaños para alcanzar la puerta de acceso.Está distribuido en una estancia principal con dos ventanas orientadas a calle Aurora y un aseo con ventana hacia al patio trasero. La puerta de acceso es de madera, y la carpintería de los huecos de fachada de madera con vidrio sencillo, persianas, y enrejado metálico exterior. La parte superior de lafachada es de ladrillo visto, y el zócalo inferior de piedra natural. Presenta solado de baldosa cerámica, paredes revestidas de yeso, y sin falso techo.En cuanto a las instalaciones, cuenta con instalación de fontanería, saneamiento, electricidad y calefacción, todas ellas anticuadas y en desuso.- Calificación:
- Comercial
- Tipus:
- Local
- Inscripción:
- Superficie (m²):
- 55,82







