Texto no traducido
Ref.: IE-38-001-002-000
LOCAL EN CALLE CONDE DE PALLASAR Nº 5 BAJO L-1
(STA. CRUZ DE TENERIFE)
- Descripción y Situación:
La propiedad se encuentra en un bloque de viviendas sito en el término municipal de Santa Cruz de Tenerife, en el interior de una parcela limitada por la calle Conde Pallasar, desde la que se accede tanto a la propiedad como al resto de la construcción.
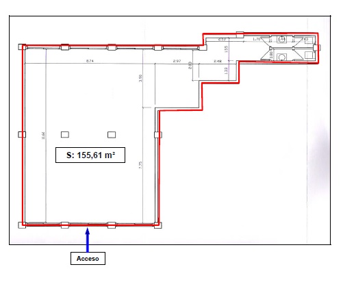
Se trata de un local comercial con forma de “L” o de pistola y se compone de un espacio rectangular y otras dependencias anexas, dos aseos.El local cuenta con una entrada paralela a la calle, a la cual se accede después de alcanzar la cota donde se sitúa la edificación mediante una rampa que discurre por la zona ajardinada perimetral o bien siguiendo el curso de la calle hasta el encuentro con dicha cota.La fachada está constituida por un cerramiento de vidrio, carpintería metálica protegida con cierre metálico y bloque de hormigón visto. El interior del local presenta una altura libre de 2,85 metros.- Calificación:
- Comercial
- Tipus:
- Local
- Superficie (m²):
- 155,61







