Texto no traducido
Ref.: IE-28-001-170-000
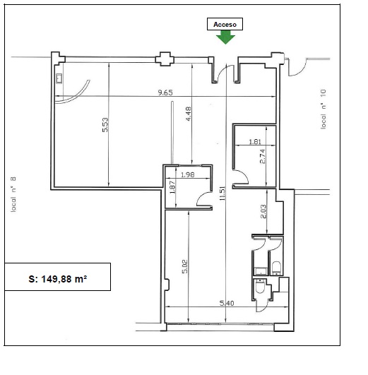
LOCAL EN PASEO DE LANCEROS Nº 2, PLANTA 1 LOCAL 9
MADRID (MADRID)
- Descripción y Situación:
- La propiedad se encuentra en el término municipal de Madrid, en la Colonia Dehesa del Príncipe (barrio de Campamento del distrito de Latina), en el edificio comercial señalado con el nº 2 del Paseo de los Lanceros, en su planta primera.Tiene acceso por el interior del edificio, desde el distribuidor de planta de la galería comercial.Se trata de un local comercial con forma de polígono irregular en “L”, distribuido en varias dependencias y servicios, según su último uso, (una peluquería).La fachada principal por donde se accede, está acabada en mármol, con ventanales irregulares. Tiene el acceso retranqueado, con cierre enrollable. El solado es de baldosa de gres. Las paredes están revestidas de yeso. Los aseos alicatados. Tiene falso techo de escayola dejando una altura libre de 2,90 m.En la fachada posterior, que da a la calle peatonal orientada a la carretera de Extremadura, hay un gran ventanal de 90 cm. de alto, a ras de techo, en carpintería de aluminio y luna transparente.La superficie total construida es de 149,88 m², de los cuales 92,39 m² corresponden a la superficie del local y los restantes 57,49 m² corresponden a la parte proporcional de elementos comunes.Etiqueta de Eficiencia Energética: En tramitación
- Calificación:
- Comercial
- Tipus:
- Local
- Superficie (m²):
- 149,88







