Texto no traducido
Ref.: IE-28-001-018-138
LOCAL EN PASEO LANCEROS Nº 2, PLANTA 1-12
(MADRID)
- Descripción y Situación:
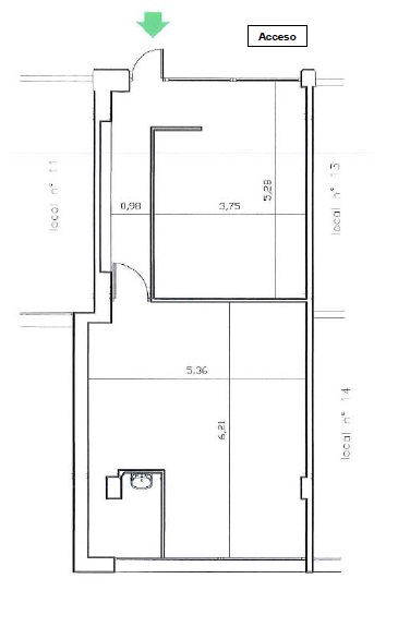
- La propiedad se encuentra en el término municipal de Madrid, en la Colonia Dehesa del Príncipe (barrio de Campamento del distrito de Latina), en el edificio comercial señalado con el nº 2 del Paseo de los Lanceros, en su planta primera.Tiene acceso por el interior del edificio, desde el distribuidor de planta de la galería comercial.Se trata de un local con forma rectangular, distribuido en dos espacios principales.El frente o fachada principal de acceso está formado por una puerta de una hoja abatible a un lado y el resto fijo, todo ello acabado en carpintería de aluminio lacado en su color, con acristalamiento transparente. Tiene un cierre de seguridad enrollable y ciego.El solado es baldosa de terrazo. Las paredes revestidas de yeso y las particiones de estancias son de pladur. En la pared del fondo hay un gran ventanal alto.Tiene falso techo de escayola dejando una altura libre de 2,90 m.La superficie total construida es de 104,05 m², de los cuales 64,14 m² corresponden a la superficie del local y los restantes 39,91 m² corresponden a la parte proporcional de elementos comunes.Etiqueta de Eficiencia Energética: En tramitación
- Calificación:
- Comercial
- Tipus:
- Local
- Superficie (m²):
- 104,05







