Texto no traducido
Ref.: IE-18-001-002-000
LOCAL CALLE RIBERA DEL BEIRO Nº17, BAJO 3
(GRANADA)
- Descripción y Situación:
La propiedad se encuentra en el término municipal de Granada, dentro del conjunto inmobiliario formado por los portales nº 13, 15, 17, 19, 21 y 23 de la calle Ribera del Beiro.
El local tiene acceso independiente a la derecha del portal.
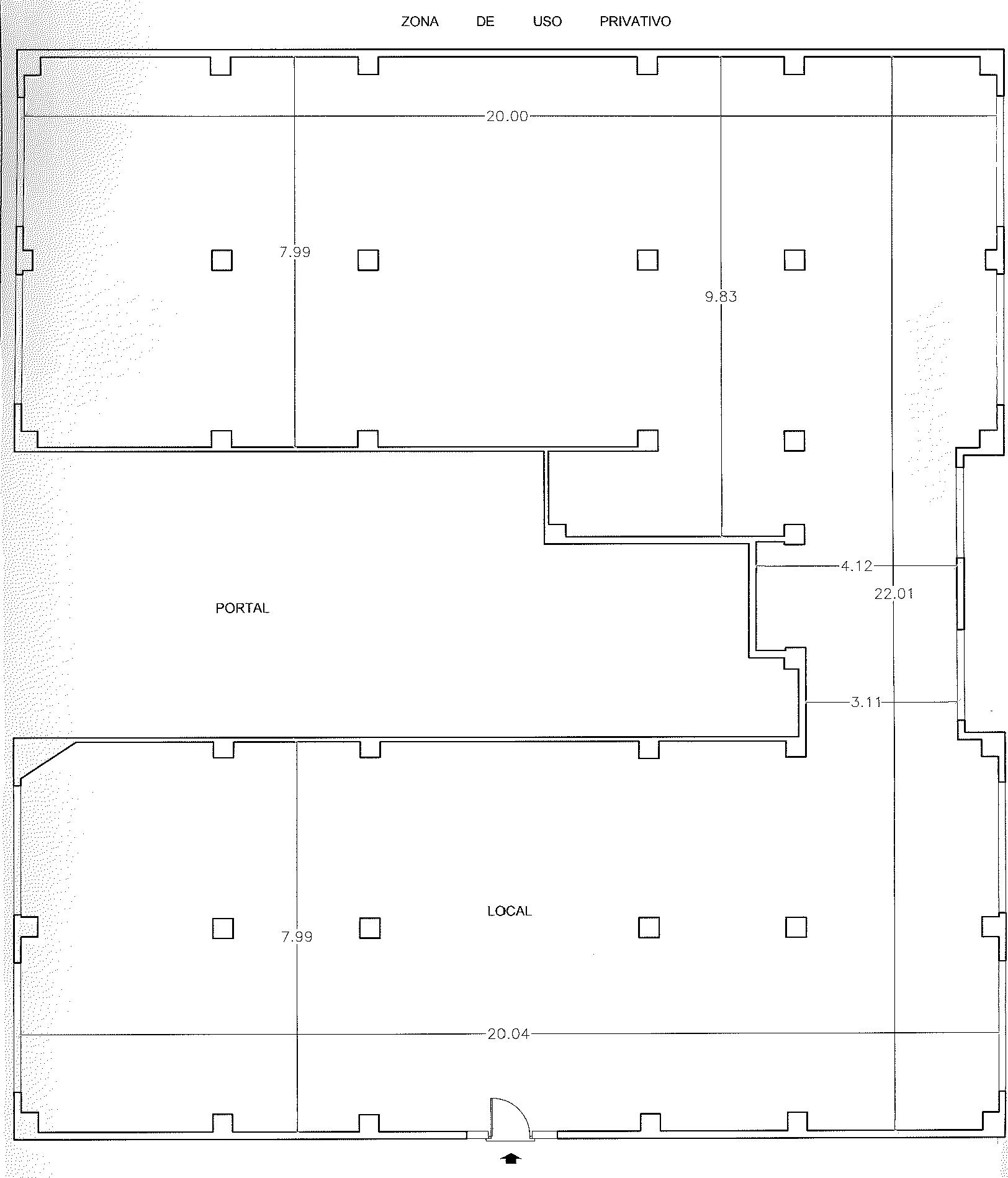
El local tiene forma de polígono irregular en “U”.
Las fachadas principales son de ladrillo cara vista. El acceso al local se realiza a través de una puerta metálica ciega, la cual es provisional. Todos los huecos se encuentran tapiados con citaras de ladrillo hueco. Las cuatro fachadas que posee, dan a una zona de acceso privativo del conjunto de bloques, también posee paredes que son medianeras con el portal y las zonas comunes de los edificios.
Interiormente el local se encuentra “en bruto” y diáfano. No posee ningún tipo de solado sobre la solera de hormigón. Las paredes del recinto principal tampoco se encuentran ejecutadas. El techo no se encuentra recubierto con ningún tipo de acabado, dejando una altura libre de 2,88 metros.
- Calificación:
- Comercial
- Tipus:
- Local
- Superficie (m²):
- 419,90







