Texto no traducido

Ref.: IE-28-245-017-000

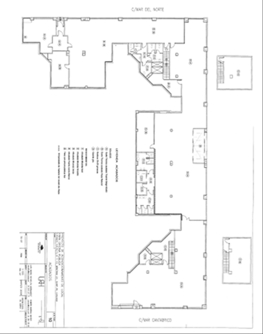
LOCALES Nº1,9,10,11,12,13,BR4 Y BR5 EN MANZANA 21 DEL SUNP-RI, EN EL BARRIO DEL PUERTO

COSLADA (MADRID)

Descripción y Situación:

El bien inmueble está compuesto por ocho locales (nº 1, 9,10,11,12,13, BR4 y BR5), unidos en un único conjunto, que abarcan toda la planta baja del lado este del edificio ubicado entre las calles Mar Cantábrico, Puerto de Algeciras, Puerto de Cádiz y Mar del Norte, en Coslada. No tienen medianerías directas con ningún otro local comercial y sólo están ligeramente recortados por los espacios ocupados por los portales de las viviendas. Los locales BR4 y BR5 se encuentran en el primer sótano y solo tienen acceso desde una escalera a los locales 9 y 12 respectivamente.Al bien inmueble se puede acceder desde la fachada principal, a través de 2 puertas dobles automáticas, por la c/Puerto de Algeciras; o también desde sus laterales (c/Mar del Norte y c/Mar Cantábrico), a través de puertas de una hoja.

Etiqueta de Eficiencia Energética: Calificación D Consumo – Calificación C Emisiones

Calificación:
Comercial
Tipus:
Local
Inscripción:
 
 
.      
Superficie (m²):
798,75

Texto no traducido

  • Plano
  • ubicacion
  • interior
  • oficinas