Texto no traducido
Ref.: IE-11-300-006-034
LOCAL EN CALLE ARENAL Nº 15, ACC, 1ª-1
SAN FERNANDO (CADIZ)
- Descripción y Situación:
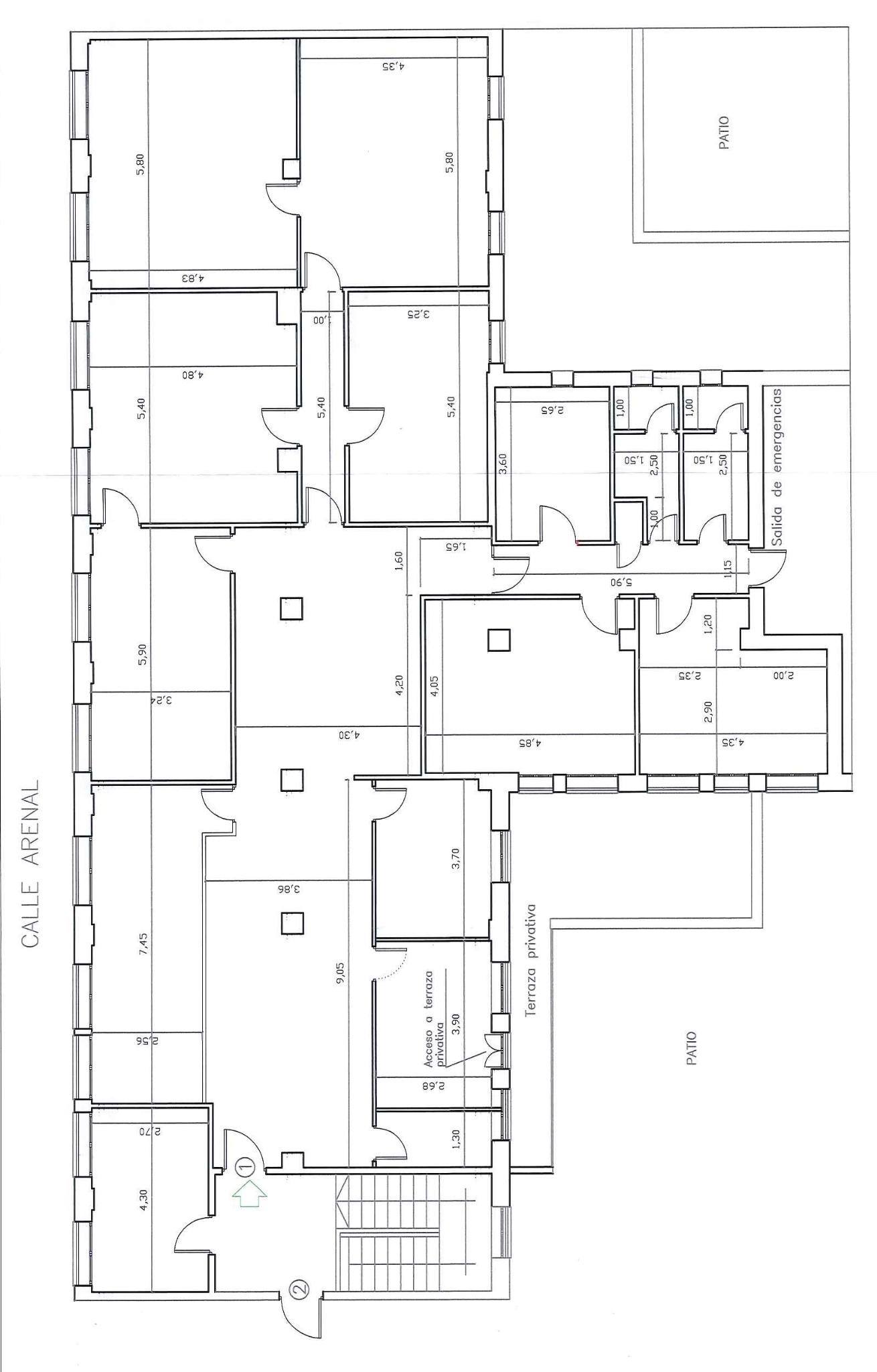
- La propiedad se encuentra en el término municipal de San Fernando (Cádiz), dentro del conjunto inmobiliario que forma el edificio señalado con los nº 24, 26 y 28 de la calle Cecilio Pujazón y nº 15 de la calle Arenal.Se ubica en la planta primera del portal nº 15 de la calle Arenal.Se trata de un local comercial principal que tiene un cuarto independiente anexo, ambos ubicados en la planta primera.Su acceso, desde la calle Arenal, se realiza a través de una puerta metálica de garaje de dos hojas abatibles con una puerta peatonal incorporada, que comunica con una zona común anexa al patio interior de manzana, desde donde se accede al núcleo de escalera a través de una puerta acristalada de aluminio blanco con cerradura de seguridad. El núcleo de escalera lleva directamente a la planta primera donde se ubica el local principal y el cuarto anexo.El local principal tiene forma de polígono irregular, con tres paredes perimetrales medianeras, dando la fachada trasera al patio interior de manzana del edificio y la fachada principal a la calle Arenal nº 15, que es por donde se accede al local.El acceso al local se realiza a través de una puerta de madera blindada de una hoja abatible. Las paredes exteriores están enfoscadas y pintadas. Presenta los siguientes huecos de ventana:- En la fachada principal presenta once huecos de ventana con carpintería de acero de hojas abatibles, vidrio sencillo y persianas enrollables de lamas de pvc.- En la fachada trasera presenta quince huecos de ventana de diversas dimensiones, 11 con carpintería de acero, de hojas abatibles, vidrio sencillo y persianas enrollables de lamas de pvc y 4 con carpintería de madera, de hojas abatibles, vidrio sencillo y contraventanas de madera.Interiormente, el local presenta varias estancias: 13 dependencias y 2 cuartos de baño.Las distribuciones interiores de las diversas dependencias están realizadas mediante tabiquería de ladrillo y mamparas de aluminio con vidrios traslucidos.El local está solado con baldosas cerámicas, presenta una altura libre de 2,70 m al falso techo, las paredes se encuentran enfoscadas y pintadas, y las paredes de los baños están alicatadas con azulejo blanco.El cuarto anexo tiene su acceso directamente desde el rellano de la escalera de la planta primera. Se trata de un cuarto independiente al local principal con los mismos acabados y características que el local principal.El local principal, además, presenta una salida de emergencia con puerta según normativa, que tiene salida directa hacia el núcleo de escaleras del portal nº 15 del mismo conjunto edificatorio.La superficie total construida del local es de 380,48 m², de los cuales 341,52 m² corresponden a la superficie del local, y los restantes 38,96 m² corresponden a la parte proporcional de elementos comunes.Etiqueta de Eficiencia Energética: Calificación D Consumo – Calificación C Emisiones
- Calificación:
- Comercial
- Tipus:
- Local
- Superficie (m²):
- 380,48








