Texto no traducido
Ref.: IE-07-320-006-000
LOCAL EN CALLE FORT DE L'EAU Nº 40, EN-1
MAHÓN (MENORCA) (ILLES BALEARS)
- Descripción y Situación:
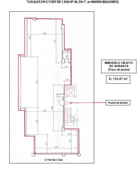
El local se encuentra en el término municipal de Mahón dentro del conjunto inmobiliario formado por los portales nº 38 y 40 de la calle Fort de L’Eau, en la planta entresuelo, puerta izquierda, del nº 40 de la citada calle.
Tiene forma de polígono irregular con base rectangular y presenta diferentes retranqueos.Tiene su acceso por la escalera comunitaria del número cuarenta de la citada finca, a través de una puerta de madera plafonada y acabado en barniz.Las fachadas son de bloque de hormigón revocado y pintado, con carpintería exterior de madera barnizada en fachada principal y pintada en blanco en el resto.El local está acabado interiormente de forma parcial. La zona acabada tiene paredes y techo con yeso y pintura plástica blanca. El pavimento es de terrazo quedando una tercera parte del local sin pavimento. No tiene instalación de electricidad, estando la instalación de fontanería en mal estado.Tiene una altura libre de 2,11 m desde el pavimento de terrazo, siendo de 2,21 m en la zona no pavimentada.Hay que tener en cuenta que Según el Decreto 145/1997, de 21 de noviembre, por el que se regula las condiciones de dimensionamiento, de higiene y de instalaciones para el diseño y la habitabilidad de viviendas así como la expedición de cédulas de habitabilidad, la altura mínima exigida para viviendas y locales habitables es de 2,5 y 2,2 metros. Para locales se admite la existencia de altillos y entreplanta con altura mínima de 2,2 metros.Etiqueta de Eficiencia Energética: Excluido
- Calificación:
- Comercial
- Tipus:
- Local
- Superficie (m²):
- 155,87







