Texto no traducido
Ref.: IE-15-350-019-000
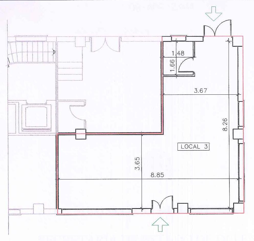
LOCAL EN CALLE LEPANTO Nº1 BAJO 3 DE FERROL
FERROL (A CORUÑA)
- Descripción y Situación:
Se encuentra en el término municipal de Ferrol, dentro del conjunto inmobiliario formado por los portales nº 1, 2 y 3 de la calle Lepanto, en la planta baja del portal nº 1, con fachada principal al interior del conjunto, plaza central, y otras dos a los lados lateral y posterior, y accesos independientes desde la plaza central y otro desde la Avda. del Mar. El local tiene planta regular en forma de L.
Sus fachadas son de fábrica de ladrillo acabadas con mortero acrílico. En la fachada principal cuenta con una puerta acristalada y una ventana pequeña que ventila el aseo, la fachada posterior tiene otra puerta acristalada y dos amplios ventanales; en la fachada lateral hay otros dos ventanales, todos protegidos con reja vertical, el resto de paredes perimetrales son medianeras con otros locales.
Su interior es casi diáfano con un aseo a la derecha de la entrada frontal. El solado es de baldosa cerámica, con sus paramentos pintados en varios colores. Su altura libre es de 2,55 metros, aunque baja a 2,25 metros donde tiene falso techo.
- Calificación:
- Comercial
- Tipus:
- Local
- Inscripción:
De acuerdo a la certificación catastral obtenida, 08 de octubre de 2015, el inmueble consta de las siguientes características:
* Parcela de naturaleza urbana, uso comercial, con referencia catastral 4151301NJ6145S0003KE, con una superficie construida de 55,00 m2.
- Superficie (m²):
- 57,02
- Importe:
- 19.153,44 €
Datos de la Venta Directa
- Fecha límite de Venta Directa:
- Hasta las 13 h del día 14 de diciembre de 2022
Texto no traducido
- Texto no traducido:
- Instituto de Vivienda, Infraestructura y Equipamiento de la Defensa
Departamento Comercial
Tel.: 916020844 / 916020919 / 916020601
invied_comercial@oc.mde.es
Texto no traducido
Documents d’interés
- Pliego de Condiciones Administrativas
-
- Pdf 857.45 KB
- Pliego de Condiciones Técnicas
-
- Pdf 1.49 MB
- Anuncio BOE
-
- Pdf 237.3 KB








