Texto no traducido
Ref.: IE-04-001-014-000
GARAJE E-39+PLAZA PARQUE DEL GENERALIFE Nº 8-9,S1-39
(ALMERIA)
- Descripción y Situación:
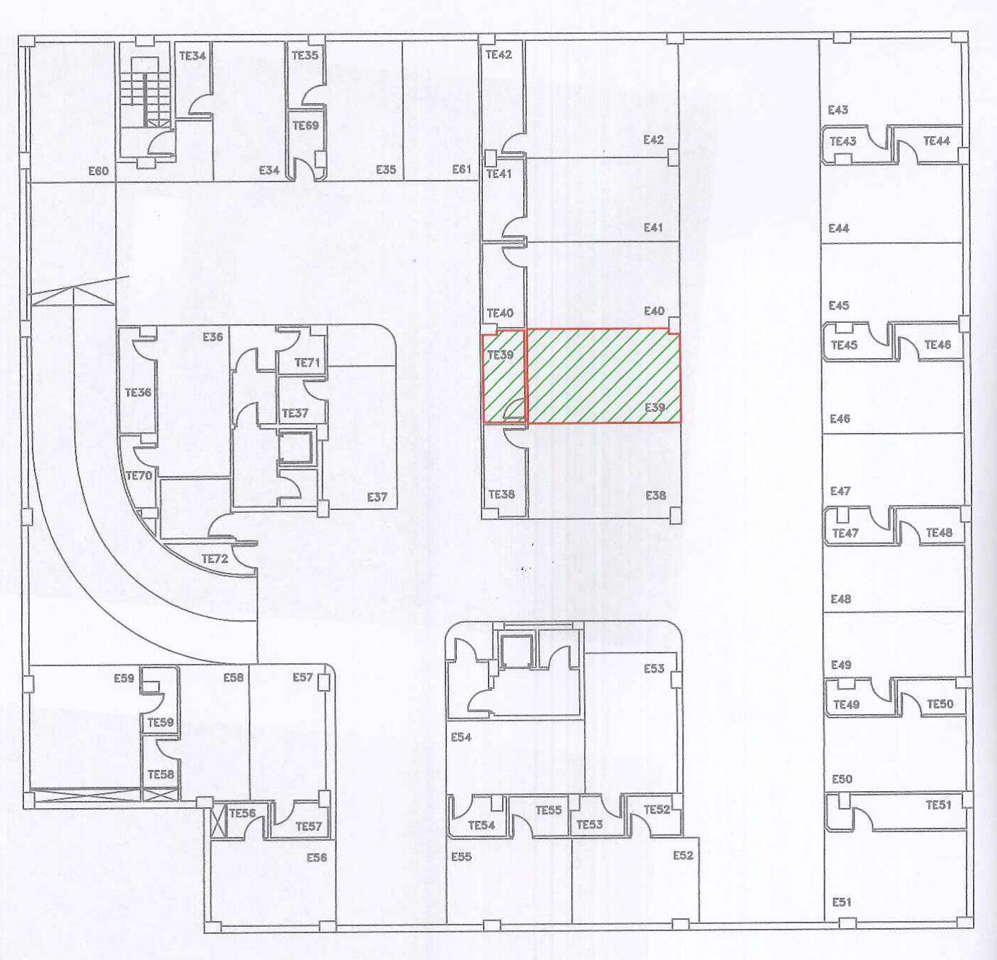
La propiedad se encuentra en el término municipal de Almería, en la Plaza Parque Generalife nº 8, Bloque E, en la primera planta de sótano y el acceso al mismo se produce desde la calle Manuel Azaña.
Esta propiedad incluye la plaza de aparcamiento E-39 y el cuarto trastero TE-39, que le es anejo inseparable.La plaza de garaje tiene forma rectangular, con unas medidas interiores de 5,52 m. de longitud y 3,28 m de anchura. Se accede frontalmente desde la calle de circulación de vehículos.
El trastero que tiene su acceso desde la misma plaza de garaje, tiene forma rectangular y presenta unas dimensiones en planta de 1,45 m. frente a la puerta de acceso y 3,18 m de anchura, con una pequeña mocheta en el lateral derecho.
- Calificación:
- Comercial
- Tipus:
- Garaje
- Inscripción:
DATOS CATASTRALES
De acuerdo a la certificación catastral obtenida, 06 de abril de 2016, el inmueble que se subasta consta de las siguientes características:
* Parcela de naturaleza urbana, uso almacén-estacionamiento, con referencia catastral 9478004WF4797N0006ZD, con una superficie construida de 43,00 m2.
- Superficie (m²):
- 46,95
Datos de la Venta Directa
Texto no traducido
- Texto no traducido:
- Instituto de Vivienda, Infraestructura y Equipamiento de la Defensa
Departamento Comercial
Tel.: 916020844 / 916020919 / 916020601
invied_comercial@oc.mde.es








