Texto no traducido
Ref.: IE-28-001-178-000
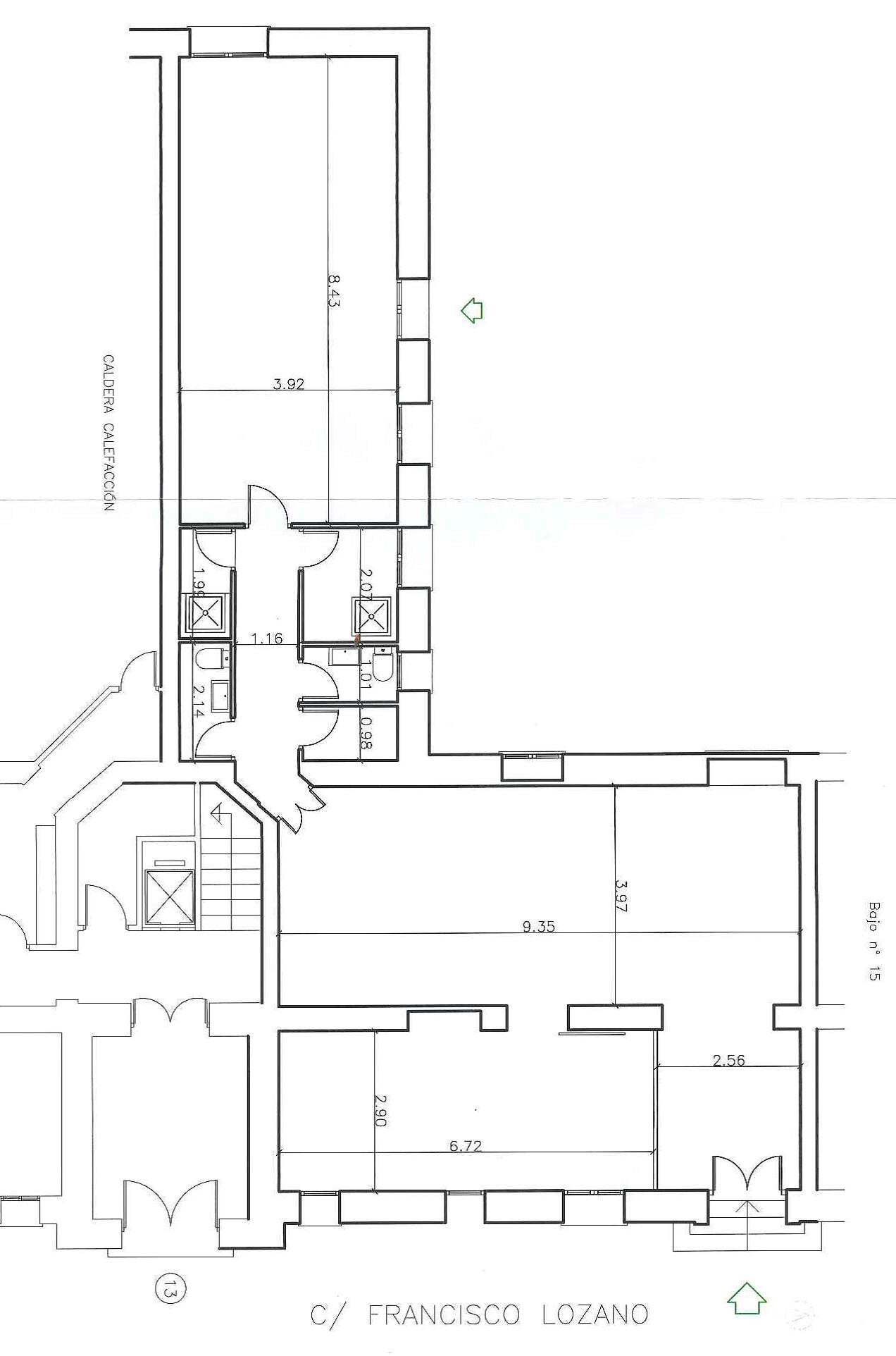
LOCAL EN C/FRANCISCO LOZANO Nº 13 BJ A
MADRID (MADRID)
- Descripción y Situación:
La propiedad objeto de subasta, se encuentra en el término municipal de Madrid, en el conjunto inmobiliario que forman los edificios señalados con los nº 1 al 15 (impares) de la calle Francisco Lozano y nº 10 al 20 (pares) de la calle Romero Robledo.
Pertenece al portal nº 13 de la calle Francisco Lozano y se desarrolla en planta baja.
Tiene acceso independiente desde la calle Francisco Lozano.
Se trata de un local comercial con forma de polígono irregular en “L”, al que se accede, desde la calle de su situación, mediante cuatro peldaños de piedra de granito. La puerta de entrada es de aluminio acristalado sobre cercos de madera de antigua carpintería. En el hueco de acceso hay un cierre metálico enrollable ciego.
Cuenta con otra puerta de salida a la calle San Juan Bosco, que es la calle particular del conjunto inmobiliario.
Tiene ventanas de aluminio sobre cercos de madera de antigua carpintería, con rejas metálicas. Dos huecos de ventana a la calle particular están actualmente tabicados.
Consta de varias dependencias y servicio, con solado de baldosa de terrazo y de gres, las paredes están enyesadas y pintadas y el techo es el forjado a una altura libre de 2,84 m. Los aseos están alicatados y tienen falso techo.
La superficie total construida es de 160,60 m², de los cuales 143,96 m² corresponden a la superficie del local y los restantes 16,64 m² corresponden a la parte proporcional de elementos comunes.
- Calificación:
- Comercial
- Tipus:
- Local
- Inscripción:
Inscrita en pleno dominio a favor del Estado, Instituto de Vivienda, Infraestructura y Equipamiento de la Defensa, como finca número 74056, al tomo 2660, Libro 2660, Folio 66, Inscripción 2ª del registro de la propiedad número 25 de Madrid.
CRU: 28106000473847.
- Superficie (m²):
- 160,6
Datos de la Venta Directa
Texto no traducido
- Texto no traducido:
- Instituto de Vivienda, Infraestructura y Equipamiento de la Defensa
Departamento Comercial
Tel.: 916020844 / 916020919 / 916020601
invied_comercial@oc.mde.es







