Texto no traducido
Ref.: IE-28-001-018-137
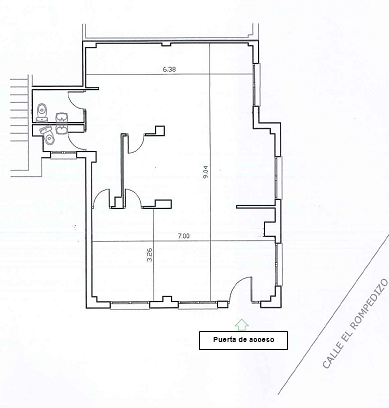
Local en calle El Rompedizo nº7, bajo D, Madrid (V)
(MADRID)
- Descripción y Situación:
El local se encuentra en el término municipal de Madrid, dentro del conjunto inmobiliario compuesto por los portales nº 3, 5, 7, 9, 11 y 13 de la calle Rompedizo. En la planta baja del portal nº 7, a la derecha del portal.Dicho conjunto inmobiliario forma una urbanización cerrada con vallado metálico.Tiene acceso independiente desde el exterior, a través de la zona ajardinada del conjunto inmobiliario. Tiene forma de polígono irregular con tres fachadas principales. Los paramentos exteriores son de ladrillo cara vista. Al local se accede por su fachada principal a través de una puerta de aluminio. Tiene seis huecos con ventanas de aluminio y reja metálica. El local se distribuye en dos dependencias principales y dispone de dos aseos. El solado es de PVC, con paredes enyesadas. Los aseos están alicatados hasta una altura. Hay falso techo de escayola dejando una altura libre de 2,82 metros.
- Calificación:
- Comercial
- Tipus:
- Local
- Inscripción:
Inscrita en pleno dominio a favor del Estado, Instituto de Vivienda, Infraestructura y Equipamiento de la Defensa, como finca número 57680, al tomo 1123, Libro 1123, Folio 45, Inscripción 2ª del registro de la propiedad número quince de Madrid.
IDUFIR: 28039000611028.
- Superficie (m²):
- 77,80
Datos de la Venta Directa
Texto no traducido
- Texto no traducido:
- Instituto de Vivienda, Infraestructura y Equipamiento de la Defensa
Departamento Comercial
Tel.: 916020844 / 916020919 / 916020601
invied_comercial@oc.mde.es
Texto no traducido
Documents d’interés
- Pliego de Condiciones Técnicas
-
- Pdf 3.23 MB




