Texto no traducido
Ref.: IE-28-001-018-134
Local en calle El Rompedizo nº3, bajo AB, Madrid (V)
(MADRID)
- Descripción y Situación:
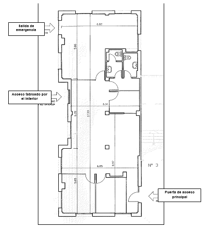
El local se encuentra en el término municipal de Madrid, dentro del conjunto inmobiliario compuesto por los portales nº 3, 5, 7, 9, 11 y 13 de la calle Rompedizo. En la planta baja del portal nº 3, a la izquierda del portal. Dicho conjunto inmobiliario forma una urbanización cerrada con vallado metálico. Tiene acceso independiente desde el exterior, a través de la zona ajardinada del conjunto inmobiliario. Tiene forma de polígono irregular con tres fachadas principales. Los paramentos exteriores son de ladrillo cara vista. El local tiene 3 accesos según se detalla en el plano adjunto (acceso actual, otro acceso tabicado y la puerta de emergencia). Tiene nueve huecos con ventanas de aluminio y reja metálica. El local se distribuye en varias dependencias, con aseos.La altura libre a forjado del local es 3,55 m.
- Calificación:
- Comercial
- Tipus:
- Local
- Inscripción:
Inscrita en pleno dominio a favor del Estado, Instituto de Vivienda, Infraestructura y Equipamiento de la Defensa, como finca número 57632, al tomo 1120, Libro 1120, Folio 77, Inscripción 2ª del registro de la propiedad número quince de Madrid.
IDUFIR: 28039000610540
- Superficie (m²):
- 142,23
Datos de la Venta Directa
Texto no traducido
- Texto no traducido:
- Instituto de Vivienda, Infraestructura y Equipamiento de la Defensa
Departamento Comercial
Tel.: 916020844 / 916020919 / 916020601
invied_comercial@oc.mde.es




