Texto no traducido
Ref.: IE-28-001-018-006
LOCAL EN CALLE MASTELERO 16, BJ-2
MADRID (MADRID)
- Descripción y Situación:
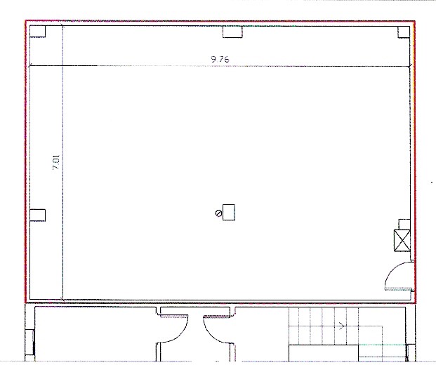
La propiedad objeto de subasta está situada en el término municipal de Madrid, dentro del conjunto inmobiliario formado por los portales nº 4, 8, 12, 16 y 20 de la calle Mastelero y nº 17 de la calle Trinquete, en la planta baja del portal nº 16 de la calle Mastelero, entrando a la derecha.
Se trata de un local en planta baja con acceso independiente desde el interior de la urbanización del conjunto inmobiliario del que forma parte. No tiene, por tanto, acceso directo desde vial público.
Tiene forma de polígono regular rectangular. Tiene tres paredes perimetrales exteriores que dan a la urbanización de la que forma parte, con circulación exclusivamente peatonal, y la pared restante es medianera con el portal de acceso al edificio al que pertenece.
Las paredes exteriores son de ladrillo cara vista de ½ pie de espesor con franja horizontal enfoscada y pintada. No tiene huecos de ventanas. La puerta de acceso es blindada.
Interiormente, el local es diáfano. Tiene solado de terrazo de 30 x 30 cm., falso techo de escayola dejando una altura libre de 2,50 m. y paredes perimetrales parcialmente revestidas y pintadas.
La superficie construida es de 94,35 m², de los cuales 72,20 m² corresponden a la superficie del local y los restantes 22,15 m² corresponden a la parte proporcional de elementos comunes.
Linderos:
Por su frente, por donde tiene la entrada, calle Mastelero.
Por la derecha, entrando, espacio libre de parcela orientado a la calle Mastelero.
Por la izquierda, zonas comunes de portal.
Por el fondo, espacio libre de parcela
- Calificación:
- Comercial
- Tipus:
- Local
- Inscripción:
Inscrita en pleno dominio a favor del Estado, Instituto de Vivienda, Infraestructura y Equipamiento de la Defensa, como finca número 38.818, al tomo 2122, Libro 978, Folio 162, Inscripción 2ª del registro de la propiedad número doce de Madrid.
CRU: 28098000405099.
- Superficie (m²):
- 94,35
Datos de la Venta Directa
Texto no traducido
- Texto no traducido:
- Instituto de Vivienda, Infraestructura y Equipamiento de la Defensa
Departamento Comercial
Tel.: 916020844 / 916020919 / 916020601
invied_comercial@oc.mde.es







