Texto no traducido
Ref.: GE-33-001-047-139
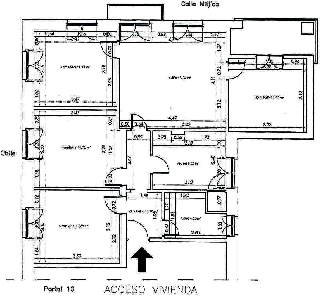
VIVIENDA EN CALLE CHILE 10 PRIMERO IZQ
OVIEDO (ASTURIAS)
- Descripción y Situación:
La propiedad está situada en la calle Chile nº 10 de Oviedo, en la planta primera puerta izquierda, que pertenece a un edificio denominado “GRUPO DE VIVIENDAS SANTA BÁRBARA”, situado en el barrio HUCA-La Cadellada, en el noreste de la ciudad de Oviedo, lindante con el centro urbano, en la calle Chile, que conecta las calles Reyes Católicos y Méjico. Es un barrio de urbanización en retícula y edificación en manzanas cerradas que suelen tener grandes patios o plazas interiores. Tiene zonas verdes cercanas y acceso a vías rápidas de comunicación. Es, por tanto, una zona urbana consolidada con adecuados equipamientos.
Se trata de una vivienda con una superficie construida de 97,00 m² y útil de 87,57 m², que cuenta con fachadas a las calle Chile, por donde se accede al portal y otra a la calle Méjico, además de una tercera fachada que da al patio interior abierto. Consta de una planta y se compone de vestíbulo, cocina, comedor, baño, cuatro dormitorios y balcones. La puerta de acceso a la vivienda, puertas de paso interiores y ventanas son de carpintería de madera de color banco con vidrio sencillo. Las fachadas chapadas continúan la estética de la fachada general del edificio, con aplacado cerámico imitación de ladrillo caravista y paños de mortero de cemento cargado y pintado. Entre la vivienda y el rellano de la primera planta no existe ningún desnivel, solamente hay un pequeño escalón dentro de la vivienda, en el acceso al baño, de 9 cm. La altura libre hasta el forjado es de 2,80 m.
- Calificación:
- Residencial
- Tipus:
- Vivienda
- Inscripción:
Inscrita en pleno dominio a favor del Estado, Ramo Ministerio de Defensa, Gerencia d (sic) hoy Instituto de Vivienda, Infraestructura y Equipamiento de la Defensa, como finca registral 9314, al Tomo 2734, Libro 1989, Folio 64, inscripción 2ª, del Registro de La Propiedad nº 3 de Oviedo. IDUFIR: 33027000104352.
- Superficie (m²):
- 97
Datos de la Venta Directa
Texto no traducido
- Texto no traducido:
- Instituto de Vivienda, Infraestructura y Equipamiento de la Defensa
Departamento Comercial
Tel.: 916020844 / 916020919 / 916020601
invied_comercial@oc.mde.es








