Texto no traducido
Ref.: GE-33-001-047-107
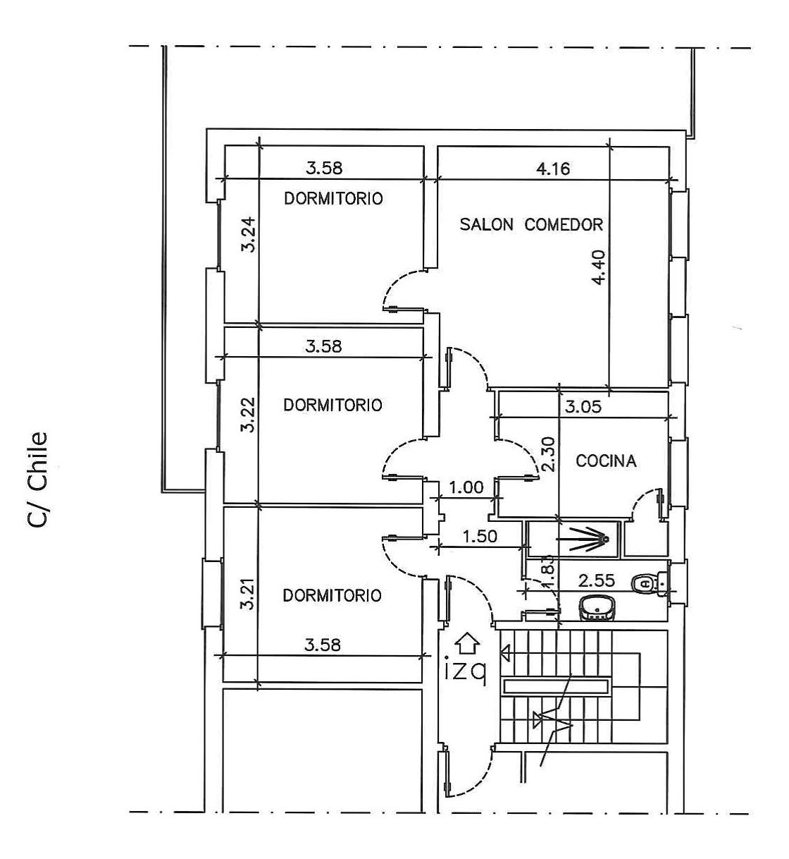
VIVIENDA EN CALLE CHILE 2 1º IZQ
OVIEDO (ASTURIAS)
- Descripción y Situación:
La propiedad está situada en la calle Chile nº 2 de Oviedo, en la planta primera puerta izquierda, que pertenece a un edificio denominado “GRUPO DE VIVIENDAS SANTA BÁRBARA”, situado en el barrio HUCA-La Cadellada, en el noreste de la ciudad de Oviedo, lindante con el centro urbano, en la calle Chile, que conecta las calles Reyes Católicos y Méjico. Es un barrio de urbanización en retícula y edificación en manzanas cerradas que suelen tener grandes patios o plazas interiores. Tiene zonas verdes cercanas y acceso a vías rápidas de comunicación. Es, por tanto, una zona urbana consolidada con adecuados equipamientos.
Se trata de una vivienda con una superficie construida de 85,00 m² y útil de 69,36 m², integrada por vestíbulo, cocina, salón-comedor, baño, tres dormitorios y balcón.
- Calificación:
- Residencial
- Tipus:
- Vivienda
- Inscripción:
Inscrita en pleno dominio a favor del Estado, Instituto de Vivienda, Infraestructura y Equipamiento de la Defensa, como finca registral 9282, al Tomo 2733, Libro 1988, Folio 142, inscripción 2ª, del Registro de La Propiedad nº 3 de Oviedo. IDUFIR: 33027000104031.
- Superficie (m²):
- 85
Datos de la Venta Directa
Texto no traducido
- Texto no traducido:
- Instituto de Vivienda, Infraestructura y Equipamiento de la Defensa
Departamento Comercial
Tel.: 916020844 / 916020919 / 916020601
invied_comercial@oc.mde.es







