Texto no traducido
Ref.: IE-38-001-003-000
LOCAL EN CALLE TAGORE Nº 9, L-1
(STA. CRUZ DE TENERIFE)
- Descripción y Situación:
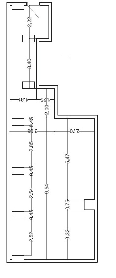
- La propiedad se encuentra en un bloque de viviendas sito en el término municipal de Santa Cruz de Tenerife, en el interior de una parcela limitada por la calle Tagore desde la que se accede tanto al local como al resto de la construcción. El total del conjunto,formado por dos bloques adosados, se sitúa paralelo a la calle que lo identifica, con la que linda por su parte delantera y a la calle de César Casariego por la parte trasera, además de con resto de espacio libre de la parcela, en el caso del bloque donde se sitúa el local.La construcción del conjunto data del año 1.978 según documentación catastral y cuenta con 6 plantas de altura + baja, lo que hace un total de 7, siendo el uso predominante el residencial con 4 viviendas por planta en ambos bloques.Cuenta con una entrada paralela a la calle e independiente del acceso a las viviendas, presenta forma predominantemente rectangular y se compone de un espacio diáfano, con una altura de 2,50 m.La fachada, al igual que el resto del edificio, está constituida por un cerramiento de bloque de hormigón visto pintado del que no se tiene constancia que haya sido objeto de mantenimiento o reforma. El interior del local está compuesto por solados de hormigón y paredes de bloque con instalaciones vistas, con celosía de igual material en una tira paralela al forjado y protegida con una rejilla metálica interior.
- Calificación:
- Comercial
- Tipus:
- Local
- Superficie (m²):
- 98,49
Texto no traducido
- Texto no traducido:
- Instituto de Vivienda, Infraestructura y Equipamiento de la Defensa
Departamento Comercial
Tel.: 916020844 / 916020601
invied_comercial@oc.mde.es







