TRES CANTOS (MADRID)
053098
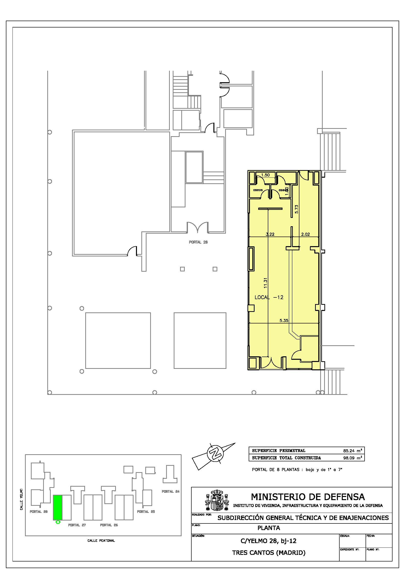
Local situado en Tres Cantos (Madrid), en el Sector Escultores. Se encuentra en la planta baja del número 28 de la calle Yelmo, a la derecha del portal. Con acceso independiente desde la calle peatonal perpendicular a la calle Yelmo.
El local, por su último uso (bar), tiene la mayor parte de su superficie diáfana para atención al público, con barra, una cocina y dos aseos.
La superficie que encierra el perímetro del local son 85,24 m², siendo su superficie total construida de 98,09 m².



