Texto no traducido
Ref.: IE-50-001-007-000
LOCAL EN CALLE JORGE MANRIQUE 1, -1, BAJO 1
(ZARAGOZA)
- Descripción y Situación:
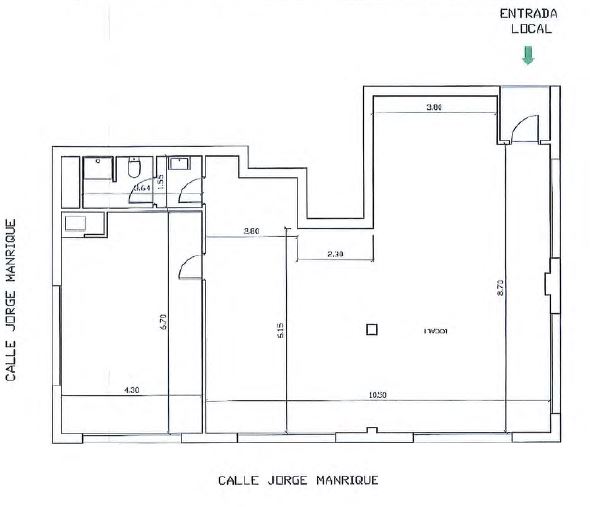
- La propiedad se encuentra situada en el término municipal de Zaragoza, dentro del conjunto inmobiliario formado por los portales nº 1 de la calle Jorge Manrique y nº 2 de la calle Flora Tristán. Se sitúa en la planta baja del portal nº 1 de la calle Jorge Manrique, con acceso a la izquierda del portal de entrada.Se trata de un local comercial en planta baja, con acceso independiente desde el interior de la urbanización del conjunto inmobiliario del que forma parte.No tiene, por tanto, acceso directo desde vial público.Tiene cuatro paredes perimetrales exteriores que dan, dos de ellas al interior de la urbanización de la que forma parte y las otras dos al exterior, quedando el local a metro y medio de altura sobre el suelo de la calle exterior.Tiene ventanas en toda la parte superior del local, lo que le hace muy luminoso.El local no está asentado en el terreno directamente sino que, bajo él, existe un sótano destinado a aparcamiento de vehículos.
Certificado de Eficiencia Energética: En tramitación
- Calificación:
- Comercial
- Tipus:
- Local
- Inscripción:
Inscrita en pleno dominio a favor del Estado, Instituto de Vivienda, Infraestructura y Equipamiento de la Defensa, como finca número 40211, al tomo 2844, Libro 982, Folio 199, Inscripción 2ª del registro de la propiedad número OCHO de Zaragoza. Código Identificador Único de Finca: 50024000755253.
- Superficie (m²):
- 164,53
- Importe:
- 91.917,18 €
Datos de la Venta Directa
- Fecha límite de Venta Directa:
- Hasta las trece horas del 4 de junio de 2026
Texto no traducido
- Texto no traducido:
- Instituto de Vivienda, Infraestructura y Equipamiento de la Defensa
Departamento Comercial
Tel.: 916020844 / 916020601
invied_comercial@oc.mde.es
Texto no traducido
Documents d’interés
- BOE
-
- Pdf 259.12 KB
- Pliego de Condiciones Administrativas
-
- Pdf 1.43 MB
- Pliego de Condiciones Técnicas
-
- Pdf 10.04 MB




