Texto no traducido
Ref.: IE-15-350-032-000
LOCAL EN CALLE SOL Nº 201, BAJO 2
FERROL (A CORUÑA)
- Descripción y Situación:
La propiedad se encuentra en el término municipal de Ferrol, en el conjunto inmobiliario formado por los portales de la calle María nº 210, nº 22-26 de la calle San Diego y nº 201 de la calle Sol. A la derecha del portal de la calle Sol nº 201, con fachada principal y acceso desde esta calle, y demás fachadas a patio interior.
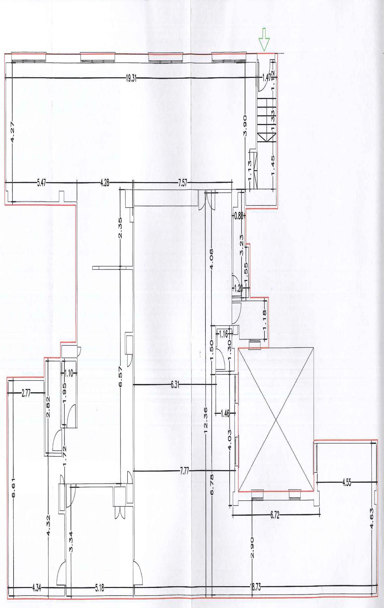
Se trata de un local con forma de polígono irregular, cuya fachada principal tiene una longitud de 20,78 metros, y el lado opuesto a ésta, el más largo, mide 28,25 m.
Sus fachadas, que son de fábrica de ladrillo revestida con mortero de cemento y acabada con pintura, cuentan con amplios ventanales. El resto de paredes perimetrales son medianeras con las zonas comunes del edificio.
Su interior lo componen una amplia estancia, a la que se accede subiendo 8 escalones, zonas de atención al público, varias estancias más, cuatro aseos y un almacen; desde el local hay acceso a varios patinillos de instalaciones.
La altura libre desde el suelo hasta el falso techo es de 2,17 m. y 2,45 m según las zonas; hasta la cara inferior del forjado de techo hay 2,60 m.
Etiqueta de Eficiencia Energética: En tramitación
- Calificación:
- Comercial
- Tipus:
- Local
- Inscripción:
Inscrita en pleno dominio a favor del Estado, Instituto de Vivienda, Infraestructura y Equipamiento de la Defensa, cmo finca número 62197, al tomo 2116, Libro 854, Folio 64, inscripción 2ª del registro de la propiedad de Ferro. IDUFIR: 15008000488042.
- Superficie (m²):
- 341,21
- Importe:
- 73.710,93 €
Datos de la Venta Directa
- Fecha límite de Venta Directa:
- Hasta las trece horas del 17 de marzo de 2027
Texto no traducido
- Texto no traducido:
- Instituto de Vivienda, Infraestructura y Equipamiento de la Defensa
Departamento Comercial
Tel.: 916020844 / 916020601
invied_comercial@oc.mde.es
Texto no traducido
Documents d’interés
- BOE
-
- Pdf 235.78 KB
- Pliego de Condiciones Administrativas
-
- Pdf 1.58 MB
- Pliego de Condiciones Técnicas
-
- Pdf 5.31 MB








