Tokikoa
Ref.: IE-33-001-003-000
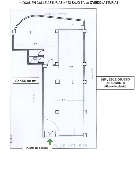
LOCAL EN CALLE ASTURIAS Nº 28, BAJO 5
OVIEDO (ASTURIAS)
- Descripción y Situación:
La propiedad se encuentra en el término municipal de Oviedo, dentro del conjunto inmobiliario que forma el edificio compuesto por los nº 24, 26 y 28 de la calle Asturias.
El inmueble está situado en la planta baja del nº 28, a la derecha del portal, colindando con el local nº 4 del portal nº 26.
Tiene Acceso independiente desde la calle Asturias.
Se trata de un local de forma irregular, que tiene fachada principal a la calle Asturias, por donde tiene su entrada.
Consta de planta baja, dividido en dos zonas, una primera habilitada como espacio de atención al público, y una segunda área separada por un tabique, donde se encuentra un aseo, un almacén y un espacio diáfano. Todo el local cuenta con un falso techo de placas de cartón-yeso registrable.
La puerta de acceso y los escaparates son de carpintería metálica con vidrio de seguridad.
Hay un escalón, de aproximadamente 4 cm, que salvan el desnivel entre el piso del local y el de la calle.
Tiene una altura libre de 3,01 m. hasta el falso techo y una altura a forjado de 3,54 m.
Etiqueta de Eficiencia Energética: Excluido
- Calificación:
- Comercial
- Mota:
- Local
- Inscripción:
Inscrita en pleno dominio a favor del Estado, Instituto de Vivienda, Infraestructura y Equipamiento de la Defensa, como finca número 10605, al tomo 3146, Libro 2202, Folio 163, Inscripción 2ª del registro de la propiedad número cuatro de Oviedo.
IDUFIR: 33030000488520.- Superficie (m²):
- 155,98
- Importe:
- 181.065,77 €
Datos de la Venta Directa
- Fecha límite de Venta Directa:
- Hasta las trece horas del 24 de septiembre de 2026
Texto no traducido
- Texto no traducido:
- Instituto de Vivienda, Infraestructura y Equipamiento de la Defensa
Departamento Comercial
Tel.: 916020844 / 916020601
invied_comercial@oc.mde.es
Estekak
Dokumentu interesgarriak
- BOE
-
- Pdf 234.62 KB
- Pliego de Condiciones Administrativas
-
- Pdf 1.49 MB
- Pliego de Condiciones Técnicas
-
- Pdf 4.65 MB







