Locals

Local en la calle Yelmo nº 28, bajo-12

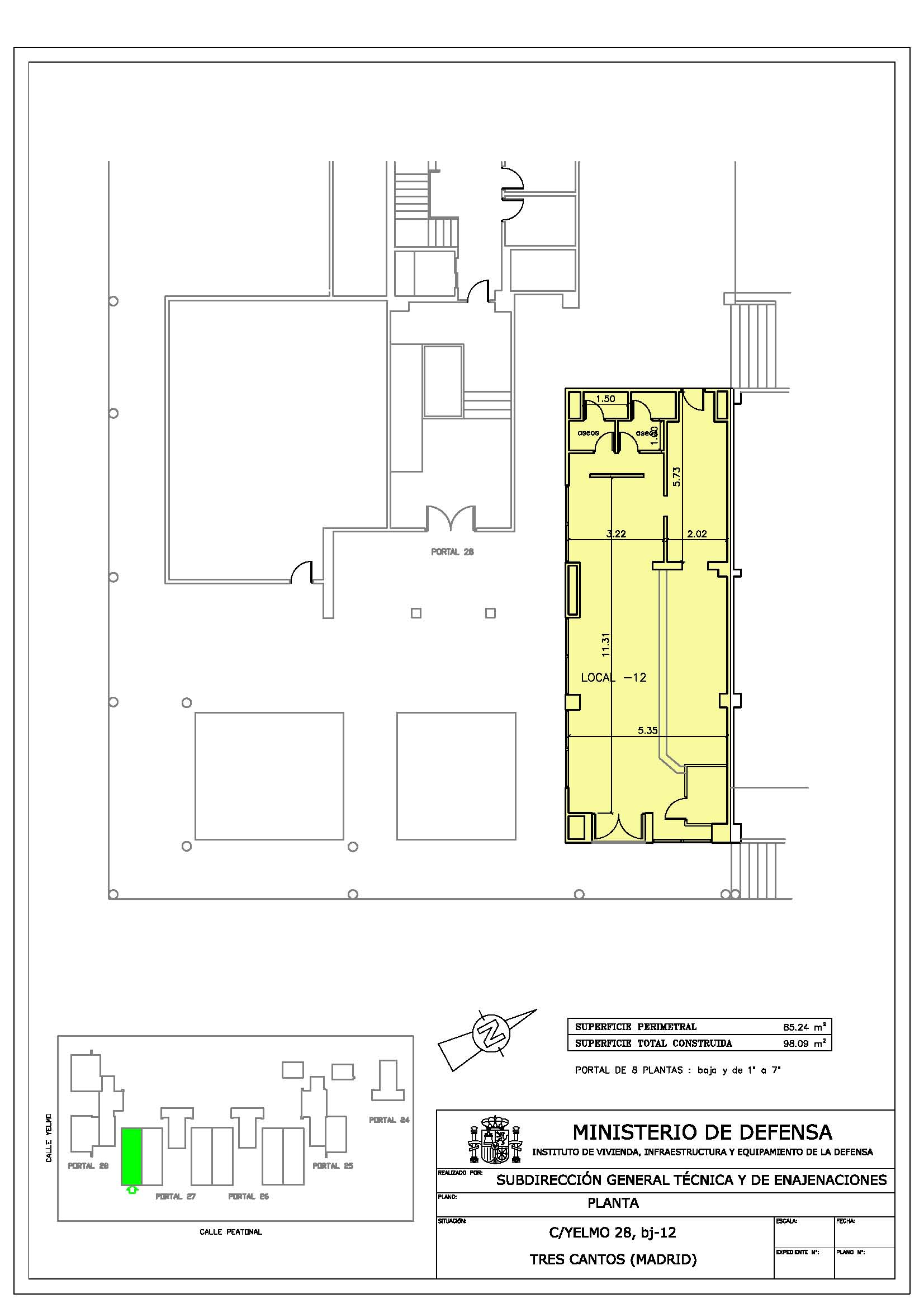
TRES CANTOS (MADRID)

053098

Description and Location:

Local situado en Tres Cantos (Madrid), en el Sector Escultores. Se encuentra en la planta baja del número 28 de la calle Yelmo, a la derecha del portal. Con acceso independiente desde la calle peatonal perpendicular a la calle Yelmo.

El local, por su último uso (bar), tiene la mayor parte de su superficie diáfana para atención al público, con barra, una cocina y dos aseos.

Qualification :
Urbana
Type:
Local
Surface:

La superficie que encierra el perímetro del local son 85,24 m², siendo su superficie total construida de 98,09 m².

Contact us:
Instituto de Vivienda, Infraestructura y Equipamiento de la Defensa
Registro General
C/ Isaac Peral, 32- 28015 Madrid
Tel.: 916020601 - Fax: 916020678
  • Mapa de situación
  • Entrada
  • Interior
  • Plano

© Copyright 2011 Instituto de Vivienda, Infraestructura y Equipamiento de la Defensa. Isaac Peral 20-32. 28015 Madrid - (34)916020601