MADRID (MADRID)
IE-28-001-018-010
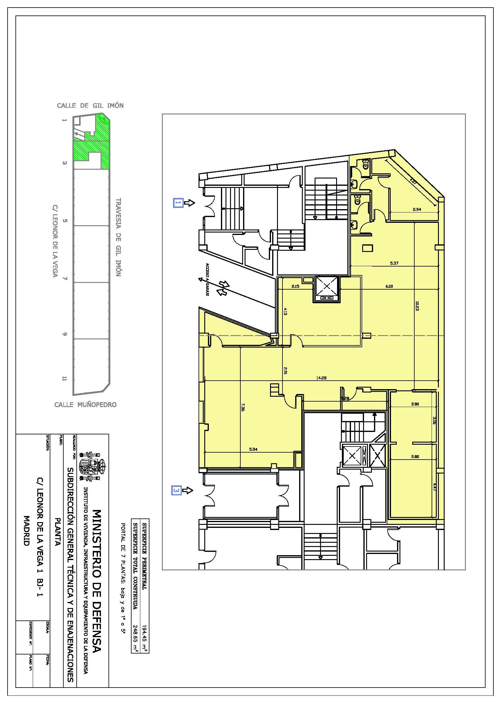
Local situado en el distrito de Arganzuela, en el barrio Imperial, de Madrid. Se encuentra a la derecha del portal del nº 1 de la calle Leonor de la Vega.
Tiene acceso independiente desde la misma calle Leonor de la Vega.
El local, por su último uso como almacén mayorista de pescado, se distribuye en varias dependencias, con aseos y con cámara de frio.
Inscrito en el Registro de la Propiedad número cuatro de los de Madrid, Finca número 63.394, al tomo 2628, libro 1451, folio 200, inscripción primera. Referencia catastral 9433501VK3793C0001TY.
248,65 metros cuadrados.



