MADRID (MADRID)
IE-28-001-018-014
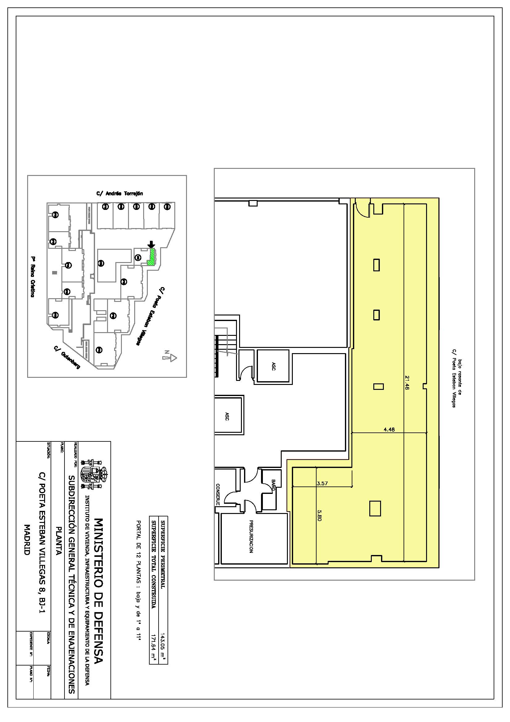
Local situado en el distrito de Retiro, en el barrio de los Jerónimos, de Madrid. Se encuentra al fondo del portal del nº 8 de la calle Poeta Esteban Villegas.
Tiene acceso desde el interior de la urbanización de la que forma parte, orientado a la calle Andrés Torrejón.
El local está diáfano.
Inscrito en el Registro de la Propiedad número dos de los de Madrid, Finca número 83.975, al tomo 2098, libro 2013, folio 217, inscripción primera. Referencia catastral 2334201VK4723C0296SK.
171,64 metros cuadrados.



